【太平洋家居网 设计频道】如同巧克力和奶油搭配而成的夹心蛋糕,令人耳目一新,胃口大开。
餐厅设计
客厅设计
Arkhefield工作室设计的奥克斯雷德别墅,位于澳大利亚昆士兰州。这座房屋外表看起来并不传统,但它确实有一个纯粹传统的核心,阐释着传统理念。连成一体的走廊阳台、轮廓别致鲜明的屋顶、镂空通风的横条侧面都体现出这一点。
---------------------------------------------------------------------------
更多别墅设计
黑白立方错角设计 阿根廷拉蓬塔别墅
//sheji.pchouse.com.cn/zuopinku/jianzhu/1109/126828.html
首尔秘密花园别墅 从地面旋转而起
//sheji.pchouse.com.cn/zuopinku/jianzhu/1109/125713.html
丛林隐士 瑞典倾斜木屋别墅
//sheji.pchouse.com.cn/zuopinku/jianzhu/1108/124503.html
绿树红花点缀 墨西哥G别墅设计
//sheji.pchouse.com.cn/zuopinku/jianzhu/1108/124101.html
新式乡村英伦风 斯堪的纳维亚别墅
//sheji.pchouse.com.cn/zuopinku/jianzhu/1108/123413.html
----------------------------------------------------------------------------
转载申明:PChouse独家专稿,请勿转载!违者本网将保留追究其法律责任的权利!
楼梯设计
楼梯设计
楼梯设计
楼梯设计
楼梯设计
荫蔽在屋檐下的走廊阳台位于第二层,不会太过亲近也不会显得疏远,同时也为二层的卧室和起居室引入了日光和闲适的风景。
前庭设计
前庭设计
屋顶设计
房屋设计尝试了多种风格和方式,从空间变化到经验之谈,从开放空间到私人空间,从坚硬的线条到柔化的轮廓,设计非常之大胆。
建筑设计
建筑设计
建筑设计
建筑设计
建筑设计
其所在区域正好是传统昆士兰人居住区和1960年以来移民聚居区的中间地带,尽管这个中间地带的风貌是多种特色兼收并蓄的混合景观,但城镇规划依旧坚持采取统一风格的建筑设计方式,这种限制严重阻碍了这一地区建筑的现代化进程。
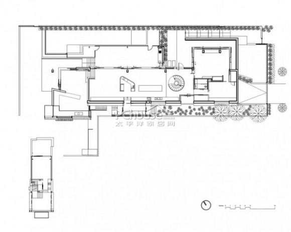
建筑设计图
建筑设计图
建筑设计图
建筑设计图
---------------------------------------------------------------------------
更多别墅设计
黑白立方错角设计 阿根廷拉蓬塔别墅
//sheji.pchouse.com.cn/zuopinku/jianzhu/1109/126828.html
首尔秘密花园别墅 从地面旋转而起
//sheji.pchouse.com.cn/zuopinku/jianzhu/1109/125713.html
丛林隐士 瑞典倾斜木屋别墅
//sheji.pchouse.com.cn/zuopinku/jianzhu/1108/124503.html
绿树红花点缀 墨西哥G别墅设计
//sheji.pchouse.com.cn/zuopinku/jianzhu/1108/124101.html
新式乡村英伦风 斯堪的纳维亚别墅
//sheji.pchouse.com.cn/zuopinku/jianzhu/1108/123413.html
----------------------------------------------------------------------------
转载申明:PChouse独家专稿,请勿转载!违者本网将保留追究其法律责任的权利!


佚名
2011-9-16 16:21:09

























