【太平洋家居网 设计频道】本案客户为80后,设计以简约现代为设计主体。在四层的别墅空间里设计师全方位设计,在420平米的设计空间里,有停车场,有度假房,有视听室……极致的豪宅设计,奢调的设计体验。
案例地址:杭州坤和-西溪里
户型:别墅(4层)
设计面积:420平米
主要用材:精工玉石 阿曼米黄大理石 红影 绒面硬包 墙纸 艺术弹涂 灰镜
客户情况:夫妻二人(80后) 考虑添子 公婆偶来度假
设计风格:简约现代风格
设计机构:杭州中博鼎泰设计机构
主案设计:汪源青
会客厅设计
会客厅设计总体上简约时尚之余又奢华大气。整体上采用米黄色的色彩设计,水晶大吊灯,大液晶电视,超大的电视背景镜面设计都在空间上映衬出豪宅设计的大气奢华。整体空间将设计的元素、色彩、照明、原材料简化到最少的程度,但对色彩、材料的质感要求很高。墙面均以饰面、绒面硬包、墙纸等材料做修饰,采用灰镜与绒面硬包和饰面做为对比,打造出空间的时尚感。
超大餐厅空间设计,地板和天花的圆形图案相呼应,设计师在这里利用了装饰画装饰,大吊灯的的垂吊设计都然客厅呈现一种低调的奢华设计。餐厅旁另设了一处饮茶区。
主卧设计
卧室设计延续整体空间风格,设计简单舒适,宽敞明亮。小阳台处还设计了一处休闲区间,在这里上网看书,有充裕的光线加上窗外的美景,是一处好选择。
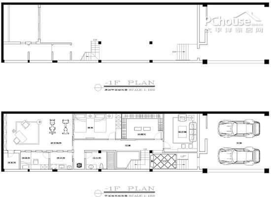
西溪里余府-1F平面设计图
-1层设立了健身区、车库、视听室,设计细致,全面满足户主需求。
西溪里余府1F平面设计图
1层主要是会客厅和厨房餐厅的设计。
转载申明:太平洋家居网独家专稿,未经授权不得转载!
推荐阅读:
150平现代欧式简约 奢华大气不输别墅
免费设计 125平3房的现代简约方案
10万125平3房设计 2个设计方案任你选
西溪里余府2F平面设计图
2层主要是儿童房和父母房的设计,房间装配齐全,配有衣帽间和卫浴。儿童房多功能设计,满足儿童的玩耍需求。中间还设立了中厅,中厅设计内外相兼、与自然相融。
西溪里余府3F平面设计图
3层是主卧所在,与此配对的还有书房、衣帽间、卫浴,在休息之余,还设计了一处景观露台。
转载申明:太平洋家居网独家专稿,未经授权不得转载!
推荐阅读:


佚名
2012-7-23 16:42:23








