交响乐厅外观设计
ADJKM Arquitectos设计的一座交响乐厅赢得了比赛。这座外观酷似垂直百叶窗的综合交响乐厅位于委内瑞拉首都加拉加斯,于今年开始建造,估计在2016年竣工。
交响乐厅室内设计
交响乐厅教室设计
作为西蒙·波利瓦国际综合设施的一部分,加拉加斯交响乐厅包括两个单位:音乐学院和两个音乐厅,由建筑中间的水平间隙将这两部分隔开来。音乐厅将设在综合楼的上层,它的结构将悬于底部之上。下面是音乐学院,设有教室和排练室。此外,剩下的空间将用于建造音乐家的宿舍、多功能教室、餐厅和办公室。
编辑推荐:
地产巨头亿万豪宅之艺术天堂设计
交响乐厅表演厅设计
交响乐厅表演厅设计
交响乐厅设计比赛背景:
一等奖项目:2012-2016年委内瑞拉加拉加斯公开比赛,西蒙·波利瓦国际综合设施音乐社会活动设施初步设计及其周边市区设计。
3个音乐厅:每个音乐厅分别可容纳座位1700、1300和500个。其中一个音乐厅可容纳400名音乐家。
音乐学院:有舞蹈室、教室、餐厅、饭堂、音乐家宿舍、行政办公室和户外露天剧场、停车场。
编辑推荐:
地产巨头亿万豪宅之艺术天堂设计
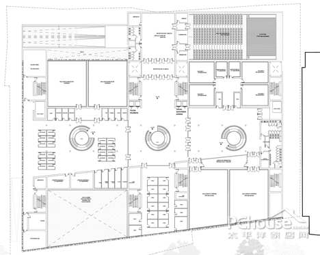
交响乐厅平面图
交响乐厅平面图
这项比赛由FESNOJIV组织。FESNOJIV是通过交响乐团和合唱团作为社会组织和社团发展的方式、旨在促进音乐教育和提高音乐综合实践的官方赞助协会。同时,FESNOJIV还是国际上公认的一个独特的著名项目,以特有的音乐训练为社会基础,从而促进拉丁美洲儿童的成长,挖掘其潜能所在。通过促进文化发展的方式,该基金会提出了社会和专才的共同发展希望。而CAF(Andean Development Corporation)则属于拉丁美洲的一个支持可持续发展和区域一体化的财务机构。
编辑推荐:
地产巨头亿万豪宅之艺术天堂设计
交响乐厅平面图
点击图片进入下一页>>
交响乐厅平面图
点击图片进入下一页>>
交响乐厅平面图
项目资料:
面积:大于36000平米
建筑公司:adjkm
负责人:Alejandro Méndez, Daniel Otero, Jean-Marc Rio, Khristian Ceballos, Mawarí Núñez
音响设计:Khale Acoustics
透视设计:Ducks Scéno
音乐厅图像:Rodolphe Rodier, Gael Nys(RSI工作室)
贡献者:José Castillo, Gabriel Castro, Nicolas Delevaux, Yuan Jiang, Gilles Lefevre, Sophie Merle, Panovi Núñez, Jorge Núñez, Javier Otero, Gregoire Plasson,Bertrand Reunaudin, Paulo Rezende
客户:FESNOJIV
编辑推荐:
地产巨头亿万豪宅之艺术天堂设计
转载申明:此文系“太平洋家居网”专稿,如需转载,请注明出处“太平洋家居网”及作者并添加原文链接地址,违者本网将追究法律责任!


佚名
2011-1-21 16:50:26











