清新舒适的Wienerwald餐厅设计│Ippolito Fleitz Group工作室设计。
Wienerwald餐厅设计:透过窗户看室内设计
Wienerwald餐厅设计:餐饮区设计
Wienerwald餐厅设计:墙面瓷瓶装饰设计
Wienerwald餐厅设计:餐饮区设计
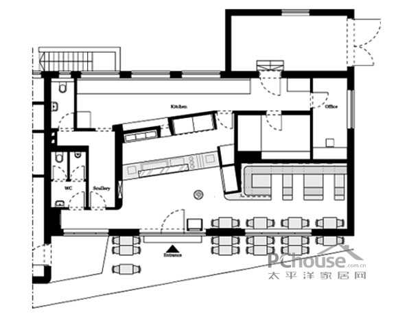
凭借悠久的历史传统,Wienerwald的第一个餐厅在1955年由德国慕尼黑的弗里德里希雅恩创办。快速增长的连锁店发展到18个国家的分支机构。为了重新加强传统品牌,委托Ippolito Fleitz Group设计工作室推出新的品牌形象,加强品牌知名度。
编辑推荐:
地产巨头亿万豪宅之艺术天堂设计
Wienerwald餐厅设计:餐饮区过道设计
新内饰推出清新,充满活力和积极的。他们翻译成一种新的视觉语言和建筑维也纳森林的高品质,舒适和德国美食传统。 新的调色板,反映了新鲜的绿色的菜单是用来赞美的白色。 黄金作为一个弹出的口音,就可以与金黄的鸡和明快的色彩记忆。
编辑推荐:
地产巨头亿万豪宅之艺术天堂设计
凭借悠久的历史传统维也纳森林的第一个餐厅(英文:维也纳森林)已在慕尼黑,德国在1955年雅恩弗里德里希。 快速增长的连锁店发展到18个国家的分支机构。 第一代后,餐厅经过几个所有制创始家族的孙子女,直到在2007年买了回来。 为了寻求重新连接并加强品牌的传统,在新的所有权委托伊波利托Fleitz组制定新的公司推出的链和恢复在慕尼黑的品牌知名度。
编辑推荐:
地产巨头亿万豪宅之艺术天堂设计
转载申明:此文系“太平洋家居网”专稿,如需转载,请注明出处“太平洋家居网”及作者并添加原文链接地址,违者本网将追究法律责任!


佚名
2011-1-19 15:28:18











