小户型复式住宅客厅设计
小户型复式住宅餐厅设计
小户型复式住宅餐厅设计
这是一套典型的瑞典现代简约风格设计案例。黑白颜色的恰当应用,使整个空间显得大气而宽敞。本案例中吊灯的选择,不同的房间不同的样式,每一支都与周围环境和房间功能搭配的很自然,二楼房间窗前的小桌子是家中最温暖的角落,真的很想有一个下午的悠闲时光能坐在这里边喝茶边阅读。
二楼客厅设计
二楼书房设计
二楼入口设计
在室内的每一个空间里,你都能看到设计师的心思,尤其是上面几个图片中你能看到设计师在玄关处利用绿色植物、小地毯,相册墙以及门厅处的收纳挂钩,都是那样的时尚而实用。
厨房设计
典型的欧式简约开放式厨房设计。绿色植物的利用,橱柜收纳的利用都值得我们借鉴。
loft小阁楼卧室设计,我们在前面也介绍了不少,但是像本案这么大气的小卧室设计还是少见。
卫浴间设计
编辑特别推荐这套卫浴间的设计方案,因为对于小户型的卫浴间设计最考验一个设计师的能力,此案例中设计师在卫浴间的空间、墙面无处不在的收纳,使整个空间干净而整洁。
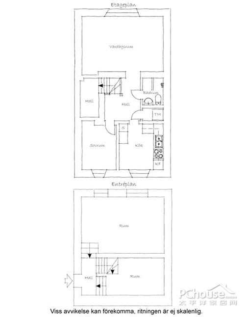
小户型复式住宅平面图
转载申明:此文系“太平洋家居网”独家原创稿件,未经书面授权不得转载,违者本网将追究法律责任!


佚名
2011-4-14 15:45:52


















