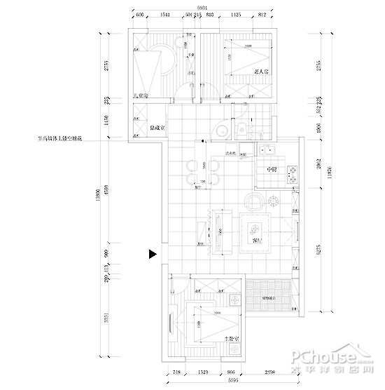
【太平洋家居网 设计频道】87平米的建筑面积,3房2厅1卫的户型,网友计划的装修预算是8万左右,喜爱的装修风格是简约温馨一点的,由于房间比较紧凑,所以希望能够装出空间感,下面我们来看一下网友详细的需求和设计师给出的设计方案。
网友上传的原户型图
网友需求:
1、阳台比较小,透光性较差。希望客厅采光能更好些。
2、主卧希望收纳性强一些,且主卧可与主体风格不一样,希望主卧的颜色以暖色系为主,淡紫色,或者淡黄色为宜。
3、次卧一个为儿童房,一个为书房(书房和客房并用,来客人时是客房,平时为书房)。
4、储物室能否改为化妆室?
5、房间比较紧凑,希望装修出空间感。
6、保留客卫的干湿分离。
7、家里有小猫一只,希望能否在合适的位置给她留出一个爬玩的空间。
设计师给出的设计方案
点击查看大图
设计方案:
设计师给网友定义了一个风格:乡村田园风格,整体构造上没有很大的改变,只是在原有的户型区域功能上加多了玄关的一个设计。针对网友提出最关心的采光问题,透纱的玄关区以及玻璃拉门的厨房,都是在空间设计的同时兼顾了采光,至于收纳,电视背景墙、厨房以及休息区、榻榻米地台可以说是最大化收纳了。另外,改动最大的是餐厅厨房空间,把原有的厨房缩小,把中厨分割在一个空间,这样让原来相对拥挤的公共空间增大,同时可以考虑把餐桌和橱柜结合。
更多免费设计专题回顾:
免费设计27:60平以下 2房2厅收纳设计
//sheji.pchouse.com.cn/mfsj/1204/200818.html
免费设计26:预算10万 3房2厅收纳设计
//sheji.pchouse.com.cn/mfsj/1204/194391.html
免费设计25期:78vs76 三居室收纳设计
//sheji.pchouse.com.cn/mfsj/1203/191991.html
免费设计第24期:49VS90 小户型收纳实战
//sheji.pchouse.com.cn/mfsj/1203/189183.html
转载申明:PChouse独家专稿,请勿转载!违者本网将保留追究其法律责任的权利!
以下是设计师推荐的参考图,非专门设计效果:
透纱+半柜的玄关形式
从客厅看到的玄关效果
玄关:通过软帘装饰的形式让空间形成一个进门玄关,因为公共空间并不是很大,通过透纱的方式让玄关有分割的形式,但同时又让空间显得透气。搭配玄关鞋柜,让人一进来就有一种温馨的感觉。
设计方案放大:玄关、客厅空间
点击查看整体设计方案
拱形电视背景墙参考图
客厅风格参考图
客厅:整体感觉简洁温馨,整体色调以浅色暖色为主,电视背景墙通过拱形的造型让空间多点趣味性,同时墙面可通过壁纸和装饰画装饰空间。
更多免费设计专题回顾:
免费设计27:60平以下 2房2厅收纳设计
//sheji.pchouse.com.cn/mfsj/1204/200818.html
免费设计26:预算10万 3房2厅收纳设计
//sheji.pchouse.com.cn/mfsj/1204/194391.html
免费设计25期:78vs76 三居室收纳设计
//sheji.pchouse.com.cn/mfsj/1203/191991.html
免费设计第24期:49VS90 小户型收纳实战
//sheji.pchouse.com.cn/mfsj/1203/189183.html
转载申明:PChouse独家专稿,请勿转载!违者本网将保留追究其法律责任的权利!
休闲台:原有的阳台可以改成一个休闲地台或者榻榻米,可以把地台做高,下储物,上做休闲台,也给小猫咪一个可以爬行的空间。
厨房通透玻璃门参考
点击查看整体设计方案
洗衣机收纳参考
餐厅&厨房:把原有的厨房缩小,把中厨分割在一个空间,这样让原来相对拥挤的公共空间增大,同时可以考虑把餐桌和橱柜结合。
卧室风格参考图
设计方案放大:主卧室空间
点击查看整体设计方案
主卧:在结构上没有过多的改造,在装饰上可利用壁纸和顶面造型装饰。
更多免费设计专题回顾:
免费设计27:60平以下 2房2厅收纳设计
//sheji.pchouse.com.cn/mfsj/1204/200818.html
免费设计26:预算10万 3房2厅收纳设计
//sheji.pchouse.com.cn/mfsj/1204/194391.html
免费设计25期:78vs76 三居室收纳设计
//sheji.pchouse.com.cn/mfsj/1203/191991.html
免费设计第24期:49VS90 小户型收纳实战
//sheji.pchouse.com.cn/mfsj/1203/189183.html
转载申明:PChouse独家专稿,请勿转载!违者本网将保留追究其法律责任的权利!
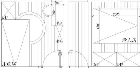
儿童房风格参考
点击查看整体设计方案
儿童房:壁纸不用贴满墙壁,贴到中线,来点英格兰的田园风,格子的壁纸配上韩式的小床,相当的小清新哦。
洗漱区浴帘参考
设计方案放大:卫生间设计
点击查看整体设计方案
卫生间:洗漱区面积较小,安装浴帘,避免洗浴时雾气,方便实用。另外,把洗漱区外置,达到干湿分区的目的,同时把洗手盘摆放在洗漱区外,利用角落的空间,设计更灵活。
乾图设计地址:朝阳区安华桥北三环中路2号院-北平房 联系电话:010-82231681
更多免费设计专题回顾:
免费设计27:60平以下 2房2厅收纳设计
//sheji.pchouse.com.cn/mfsj/1204/200818.html
免费设计26:预算10万 3房2厅收纳设计
//sheji.pchouse.com.cn/mfsj/1204/194391.html
免费设计25期:78vs76 三居室收纳设计
//sheji.pchouse.com.cn/mfsj/1203/191991.html
免费设计第24期:49VS90 小户型收纳实战
//sheji.pchouse.com.cn/mfsj/1203/189183.html
转载申明:PChouse独家专稿,请勿转载!违者本网将保留追究其法律责任的权利!


ting
2012-5-15 16:28:41


















