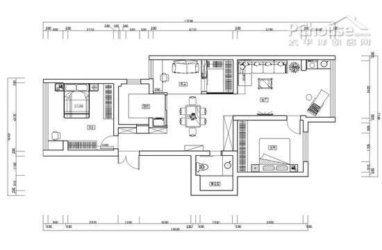
【太平洋家居网 设计频道】本案是二手房,建筑面积只有105个平方,客厅餐厅布局不合理、采光不理想、……诸多问题,拆改其实也不难,难的是拆得理性而精彩。
平面设计图
业主介绍:企业精英
房子户型:3房2厅1卫2阳台
设计风格:现代简约
设计费:15000元
楼盘:杭州天时苑
户型:建面105平方 二手房.采光不好.原来只有2房.
用材:有色乳胶漆、艺术墙纸、镜子
设计:周视空间
如果不是清醒地意识到自己的需求,如果不是有足够的勇气突破常态,家也许不会呈现出那般自由的气质。
经过改造后给人的感觉有120个平方。两个房间一个书房还有储藏室。每个空间都很大。
客厅设计
设计师在整体色调色调把握方面用了咖啡色调,褐色、棕色、咖啡色系总是给人亲切、平和、沉静的印象,喜欢淡雅宁静感觉的人们完全可以放心大胆地使用这一色系。
但在设计与搭配中应注意大面积的咖啡色系容易给人沉闷、单调、毫无生气的视觉感受。
转载申明:太平洋家居网独家专稿,未经授权不得转载!
推荐阅读:
快乐设计 辣妈与你分享6万定制的家
赠送面积巧利用 3种阳台设计攻略
46平精致小户型 温馨又有爱
因此可以在这一色系中适当加入白色、银色等明亮跳跃的色彩与装饰作为调剂并形成视觉反差。
而选用大面积的落地玻璃镜也有很好的实用装饰作用,它可以提升房间内的色彩亮度。
同时利用深浅色调的变化突出空间层次感,使房间内的家具摆设更加富于变化。
在餐厅内点缀些花草和诱人的水果也会让餐厅更加生动鲜活。(案例供稿周视空间)
转载申明:太平洋家居网独家专稿,未经授权不得转载!
推荐阅读:


佚名
2012-7-10 09:19:38










