【太平洋家居网 设计频道】阅己肖像馆(FEEL SELF)位于北京海淀区圣熙8号购物中心写字楼5层,原空间呈长条形,建筑面积120余平米。
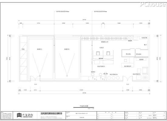
空间较狭长,在有限的空间内要满足所有业主的既定需求并非易事。空间整体化分为两部分,左侧区域为两个常规影棚,必要时可变为一间足够纵深的大区域,右半部分为工作展示区域。
空间入口对应设置为总服务区,左右为休息等候区,并打造主题新场景,便于拍摄取景。服务区上方设置两件更衣室,左侧为兼容性展示及化妆区域,该区域对应下方为图片处理区。
设计风格上追求朴素自然的工业之美,舒缓而闲。
【项目信息】
项目名称:阅己肖像馆(FEEL SELF)
项目地址:北京圣熙8号购物中心写字楼
设计师:张存光
设计单位:阡陌驿行(北京)建筑设计事务所
软装单位:北京鸿褀介软装工程设计公司
主材:原木、金属、水泥、壁纸等
【本案设计师】
张存光
中国高级室内设计师、中国高级室内建筑师
北京阡陌驿行建筑装饰设计有限公司设计总监、董事
一个热爱生活专注设计的人,豁达、随性。
专业致力于办公空间、星级酒店、精品店面、餐饮娱乐休闲空间等商业设计。
并为您个人定制独特的私人会所和极具个性的潮流空间。
同年成立北京阡陌驿行建筑装饰设计有限公司
2012年 作品《icooffe》入选美国室内设计中文网《INTERIOR DESIGN》TOP10
2012年 作品荣获2012中国照明应用大赛佳作奖
2013年 “设计改变”发起人
2013年 FRAME CHINA杂志“Many Beijing"专访
2014年 作品入选“亚太名设会”
2014年 作品入选“设计联”
2014年 两项作品作品入围国际空间大奖“Idea-Tops艾特奖”
2015年 作品入选《中国国际室内设计年鉴》
2015年 作品荣获《照明周刊》“祝融奖”
2015年 荣获吉林省优秀服装设计师称号
2016年 入选PChouse时尚设计盛典TOP100
2016年 当选吉林省艺术设计协会副秘书长
2017年 中国室内设计联盟大赛特约评委
2017年 作品荣获中国照明应用大赛佳作奖
设计作品入选于《中国室内设计年鉴》、《现代装饰》、《居礼》、《创意世界》
《INTERIOR DESIGN》、中国建筑与室内设计师网、中国装饰排行榜、美国室内设计中文网等多家杂志和网络上;
“漂泊着、存活着、设计着、快乐着”是对他最好的诠释。
凡本网注明“出处:其他”的内容,均转载自其它媒体,转载目的在于传递更多信息,并不代表本网赞同其观点和对其真实性负责。 如有侵权及时联系本网站,本网将在第一时间删除!转载内容的准确性由原内容提供者独立承担完全责任!


佚名
2018-8-28 15:35:50











