【太平洋家居网 设计频道】现代人一说起“中式”,往往会先想起满屋红木家具、东阳木雕等极为厚重的感觉。本案业主是一对80后年轻小夫妻,喜爱中国传统文化,但对于厚重的纯中式并不是十分的钟爱。加之房子格局不合理,存在诸多问题,设计师于是大胆改造,并在现代风格的基础上融入了极简的中式元素,最终效果令主人公感觉耳目一新。
Part 1•基本信息VS平面布局图
基本信息 | |||||
项目名称 | 古韵新风 | 格局 | 三室两厅 | ||
设计风格 | 现代中式 | 设计师 | 李力 | ||
| 常住人口 | 一家三口 | 设计公司 | 力设计机构(杭州) | ||
平面图设计前后
Part 2•新中式格局改造抢鲜预览
用心的新中式设计▼
时尚的新中式设计▼
现代化的新中式设计▼
大气的新中式设计▼
个性化的新中式设计▼
温婉的新中式设计▼
Part 3•智慧改造&设计
原格局:方正漏气型
设计背景:客厅虽方正,但存在拐角、入门及卧室门直入等问题,从而显得既暴露又不够整体,在风水上有“漏财”之说。设计师采用了屏风、家具、更改门向等手法进行拯救。
玄关&客厅平面图
客厅手绘图
重设玄关格局:宽窄型
用心设计:屏风,入墙式鞋柜
▼屏风关键字:墙纸,镂空
玄关屏风
为了避免进门直入客厅的风水“漏财”说,玄关用竖条纹墙纸和镂空花隔板做成了屏风,并将花格板喷白,使白色空间显得更宽敞明亮。
▼侧墙关键字:镜面,收纳
玄关
侧墙贴上一块狭长的镜子,加大空间感和通透感;旁边用作入墙式鞋柜,收纳与摆设一举两得。
重设客厅格局:方正高效型
客厅
秉持简约轻盈原则,沙发背景墙和电视背景墙都没有过多的装饰,只贴上带有格子纹理的暖灰色墙纸,挂上精致的中国风装饰画。
▼背景墙关键字2:灰镜,镂空花格板,大理石
客厅
但是空间给人感觉并不单调,而是透露出宁静致远的精致感,因为设计师在细节方面下了功夫:电视背景墙一边贴上了灰镜和镂空花格板、电视柜由两层大理石叠加在一起,与玄关处的元素形成呼应,并让空间更显质感。
▼家具关键字:太师椅,转角沙发
客厅
不锈钢太师椅搭配现代感十足的转角沙发,加上鸟笼灯的出现,和谐的新中式韵味是现代风融入中式元素的最佳诠释。
原格局:夹缝求生型
设计背景:夹于房间和玄关之间的拐角处被用作公共卫浴间,为了让狭小的空间也出彩,设计师大胆采用干湿分离法,将洗手区做成开放式,精致时尚的设计为整个客厅空间加分。
公用卫浴间平面图
卫浴间手绘图
重设公卫格局:开放式干区
时尚设计:墙面,收纳
▼墙面关键字:对称,马赛克瓷砖,定制化妆镜
开放式干区
中式讲究对称,洗手区采纳了这个原则。左右两边贴上马赛克瓷砖并镶上专门定制的化妆镜,中间用大理石隔开,质感与时尚感立现。
▼收纳关键字:烤漆门
开放式干区
洗手台下面的一排收纳柜,采用了白色烤漆门,光滑明亮的表面增加了洗手区的亮度和通透感。
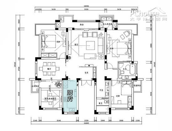
原格局:狭长低效型
设计背景:厨房的格局难以做改动,于是设计的焦点聚集在如何高效利用空间、扩大空间感和提升空间品质感之上。
厨房平面图
重设厨房格局:高效品质型
现代化设计:橱柜,瓷砖
▼橱柜关键字:收纳
厨房
厨房偏小,格局难以改动,设计从收纳方面下功夫,即使是墙角和墙壁也安装上收纳柜,但柜门整体一致的金属质感让空间非常具有现代感。
▼墙面&地板关键字:白色瓷砖
厨房
白色瓷砖反光度强,让空间显得通透明亮,映衬着整齐的橱柜,狭长空间也不显得局促。
原格局:需从厨房经过的“包厢”
设计背景:进入餐厅需从厨房经过,使餐厅有“包厢”的感觉,不但不方便,走道也占据了空间。设计师将隔壁的小书房打通,和餐厅连为一体,形成一个休闲区,入口改为客厅处,空间瞬间变得连贯大气。
餐厅&休闲区平面图
重设餐厅&休闲区格局:大气开阔的长方形
大气设计:墙面,家具,地板
▼餐厅关键字:墙面隔板和柜子
餐厅
墙面被一分为二,上半部分做了三条隔板,成为男主人展示XO和工艺品的阵地;下半部分做成了柜子,满足女主人的收纳需求。
▼休闲区关键字:原创茶几、案几,席子地板
休闲区
由设计师原创设计的茶几和案几充满中式韵味,椅子上还印满了甲骨文;地板铺上席子,进入休闲区必须脱掉鞋子,以此让人更放松休闲。
原格局:正对客厅的暴露型
设计背景:主卧房门正对着客厅,缺乏私密性,设计师将房间门的方向做了更改,使其和对面同样做了门向更改的次卧形成南北通风,既解决了问题又有利于身心健康。
主卧平面图
重设主卧格局:方形带阳台
个性化设计:墙面,阳台门,主卫
主卧
在这个私人空间中,背景墙改用颇有个性的黑色花纹,是专属于主人的大气。搭配一张铺着羊毛的皮质贵妃椅,让人联想到华贵、慵懒的空间气质。
▼阳台门关键字:隐藏式
主卧
通往阳台的门在飘窗隔壁,墙面和门都被分割成一个个格子,关上门便融为一体,彷佛是一面完整的墙,充满趣味性和隐秘性。
▼主卫关键字:黑白配
主卧卫浴间
主卫延续卧室的个性特质,黑色墙面、地面+白色卫浴用具、吊顶,形成精神的色彩冲击。其中,墙面和地面的瓷砖都选用了与床头背景墙相似的花纹。
原格局:小小方块型
设计背景:本案有两间次卧,位于主卧对面的是女儿房,位于餐厅隔壁的是客房。其中,进入女儿房需要经过公用卫浴间,设计师将房间门更改后和主卧房间门形成对流。两间房的飘窗利用成书桌和休闲区,弥补空间狭小的缺点。
次卧平面图
重设次卧格局:正常方形
温婉设计:衣柜,飘窗
▼衣柜关键字:烤漆门,推拉门
女儿房
两间次卧都利用墙面做成了壁柜,其中女儿房的壁柜用了白色烤漆门,增加了空间质感。
客房
客房使用喷成白色的推拉门,节省了打开柜门的空间。
▼飘窗关键字:书桌,休闲区
女儿房
女儿房需要兼具学习功能,飘窗经过改造,靠窗部分成为引入自然光源的书桌,转角部分是稍低一点的收纳柜;客房飘窗则铺上羊毛毯,可坐于上面聊天休息。
转载申明:太平洋家居网独家专稿,未经授权不得转载!
推荐阅读:


佳佳
2013-9-02 00:15:22








































