
灯饰展厅,是关于灯具的小型“博物馆”,在这个特定的“博物馆”里面,形形色色的灯具如同艺术品般的存在,它们被展出,被观察,同时作为展示品与空间发生关系。受精颖灯饰品牌的应邀,道胜设计为其位于中山的旗舰店进行空间升级打造。如何打破一般灯饰展厅的局限,让空间与灯饰的功能性与美学性相结合,同时让游览的动线更具趣味性,成为设计师在展厅打造中需要考虑的问题。
在本案项目中,设计师运用灯具打造不同的场景,将灯具和空间结合,更好地展示了灯具的效果。同时,将灯具当做艺术展示品应用于空间当中,让参观者在游览的过程中,就像观赏艺术品一样,更好地观察灯具产品。
森林漫游
展厅入口极具建筑感,层次性回旋的几何形体,创造出空间的未来感,激起观者的好奇,将其引入空间。


空间中打造园林展示区,将自然中的情境搬入室内。森林的概念与园林灯饰产品相结合,营造沉浸式自然空间,如同漫游于森林当中。
“林尽水源,便得一山,山有小口,仿佛若有光。便舍船,从口入。初极狭,才通人。复行数十步,豁然开朗。”在陶渊明的《桃花源记》中,展示了寻觅之后发现秘境的豁然开朗。这样寻觅的情绪,同样体现在展厅的游览之中。
窄长的长廊,两边林立的树木,营造“曲径通幽处” 的韵味。写意的游廊,将空间故事缓缓铺开,指引着观者向深处探寻。




几何形体的围合,打造独特的光影效果,同时形成空间上的过渡。尽头处的绿植,在视觉上倒映自然的生命力。



设计师将庭院的概念植入到空间当中,希冀自然的元素能够让观者感到放松,同时将人文渗透其中,与灯饰产品结合,让商业化空间更显气韵生动。
枯山水是独特的造园手法,同时也是东方美学符号,它以简约的白砂、石组及植物,呈现山水云海的自然意境。空间取枯山水之韵,一草、一木、一砂、一石,看似无水却有水,看似无山却有山。同时以灯饰与之相辅,在灯饰的照射下,树木砂石产生不同角度的光影变化,凸显出独特的东方韵味,同时演变出自然的层次感,从而在空间中形成独特的美学氛围。于方寸之中展现写意自然,调动观者的想象力,在商业空间中感受自然平和之美。





将灯饰运用于空间氛围的营造,将游览变为游园般的体验,赋予光影生命力与感染力,同时让观者直观地感受到产品对于场景的营造。


LED显示墙强化自然森林的场景体验感,不断流转的自然画面栩栩如生,目及之处,皆是森林秘境,创造沉浸式感官体验。自然树木与LED显示墙构成虚实结合的场景,创造奇妙的自然之旅。


艺术光影
光影明暗的交错,创造出极具艺术感的设计。层次感的弧形门廊叠加,打造如同当代博物馆般的艺术长廊,加强空间的科技感。灯具位于两侧,当游客参观艺术长廊时,灯具会随之自动变换颜色,给客户带来不同的体验。大面积的空间留白,让视觉的焦点流连于灯具及其所投射的光。将空间交给光,将艺术交给光,在这一方舞台上,光是唯一的主角。




将灯饰融于空间场景的表达之中,干净简约的空间语言突出产品的艺术感,制造视觉上的惊喜。在茶室及洽谈区的打造上,无论是平面的构成还是几何的构造,都是为产品的讲述进行故事情节的铺垫。












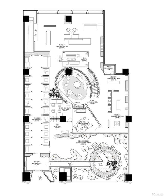
(一层平面图)

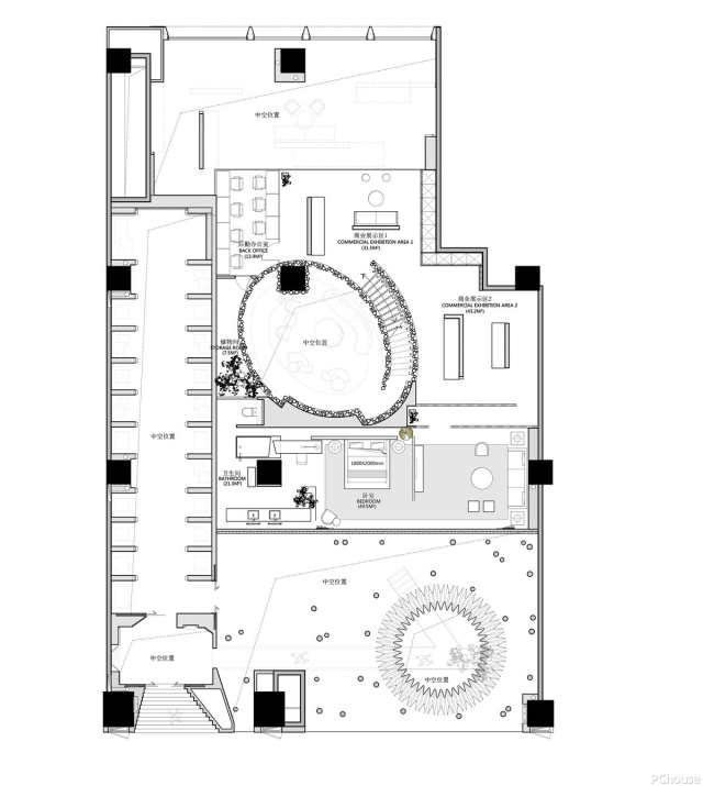
(夹层平面图)
项目名称: 中山精颖灯饰展厅 - “博物森林”记
客户名称: 中山精颖灯饰有限公司
室内设计: 广州道胜设计有限公司
软装设计: 广州道胜设计有限公司
设计总监: 何永明
设计团队: 道胜设计团队
摄影师: 东晴视频
设计时间: 2019.12
竣工时间: 2020.06

何永明
广州道胜设计有限公司
创始人&设计总监
奉行“适合”就好的设计哲学,2003年创立何永明设计师事务所,2005年成立广州道胜设计公司,广东省陈设艺术协会副会长,中国建筑学会会员、中国建筑学会室内设计分会理事,专注设计工作之余亦曾担任广州美术学院客座讲师、华南师范大学室内设计系研究生导师。近年来荣获国内外设计奖项超过100多项,其中更获德国红点大奖、德国IF设计大奖、美国BEST OF YEAR AWARDS设计金奖、安德鲁马丁国际室内设计大奖、意大利A design 设计金奖 、美国IDA设计大奖银奖、香港环球设计大奖 、APIDA香港亚太室内设计大奖。『道胜设计』更于中国建筑学会室内设计分会2015 CIID中国室内设计大奖赛中获得『最佳设计企业大奖』。
![]()
道胜设计(DAOSHENG DESIGN)二零零三年成立,广州道胜设计有限公司及何永明(Tony Ho)设计师事务所一直追求创意、实用优质的设计业职,设计师均为专业及经验丰富的建筑及室内设计师,设计范畴包括室内设计、建筑设计以及家具设计。室内设计范畴则遍及会所、样板房、营销中心,办公室、商场、酒店、餐厅及酒吧等。凭着卓越的成就,道胜设计屡获殊荣,多年来备受国内外权威人士、传媒推崇。道胜所设计的项目遍布各大城市,以现代主义精神与热情为设计注入完美无瑕的风格和创新能量。凭着丰富的专业知识与工程经验,透过整合建筑、室内设计、视觉图像和室内布置,每一次新作皆创造出独特的感官魅力与欢愉的空间气氛。
凡本网注明“出处:其他”的内容,均转载自其它媒体,转载目的在于传递更多信息,并不代表本网赞同其观点和对其真实性负责。 如有侵权及时联系本网站,本网将在第一时间删除!转载内容的准确性由原内容提供者独立承担完全责任!










































评论