【太平洋家居网 设计频道】本次两套案例,一个是拥有绝美海景的先天优势,设计师依此为主轴将其实品屋定义为市郊度假宅,并把年龄层锁定退休人员,进而衍伸出了中国风情的沉稳面貌;另一个是邻近机场,设计师于主要公领域取其最大公约数做出造型整合,转换空间特色同时也低调刻划了奢华氛围。
116平中式风格设计 PART1
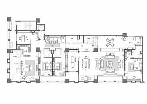
| 基本信息 | |||||
| 类型 | 小户型 | 设计风格 | 中国风 | ||
| 面积 | 116.6平方米 | 设计师 | 大企国际空间设计 谢启明 设计师 | ||
| 空间格局 | 玄关、客厅、厨房、餐厅、书房、主卧房、次卧房*2、卫浴*2 | ||||
平面布局图
全室语汇的串联上,大企设计刻意以比例厚实的斗框为媒介,从电视主墙面到私领域入口,甚至书桌、化妆台皆以此框定,安定宁静感与光源不外洒的巧思,让空间共享时有着不受干扰的惬意。
玄关设计
设计重点:镜面门
编辑点评:镜面为门片的玄关段落收纳,加以壁龛设计,形与机能完整兼备。
客厅设计
设计重点:斗框设计
编辑点评:全室语汇的串联上,大企设计刻意以比例厚实的斗框为媒介。
客厅设计
设计重点:绝美海景优势
编辑点评:拥有绝美海景的先天优势,是此建案于销售时的最佳卖点,设计师谢启明依此营造市郊度假宅风情。
客厅设计
设计重点:中国风情
编辑点评:年龄层锁定退休人员的谢启明,空间中进而衍伸出了中国风情的沉稳面貌。
客厅设计
设计重点:电视主墙面
编辑点评:斗框设计从电视主墙面到私领域入口,安定宁静感与光源不外洒的巧思,让空间共享时有着不受干扰的惬意。
客厅设计
设计重点:家具选搭
编辑点评:人文质感的中国风气息,以不琐碎、繁复的简炼为家私选择。
转载申明:太平洋家居网独家专稿,未经授权不得转载!
推荐阅读:
现代中式大户型 三室两厅强规划
10万半包翻新 老人小孩同住85平中式家
新婚夫妇秀婚房 两个人的50平米小家
116平中式风格设计 PART2
餐厅设计
设计重点:三面向的开阔视感
编辑点评:以茶玻破除书房的封闭,餐厅飨食有着三面向的视感开阔。
书房设计
设计重点:单人床卧榻规划
编辑点评:单人床尺度的卧榻规格,让书房空间可作为客卧弹性运用。
卧室设计
设计重点:材质延伸视觉
编辑点评:从地面至墙面,可见橡木洗白色的木皮完整延伸。
卧室设计
设计重点:延续原有格局
编辑点评:延续建商原有格局,休憩于床上仍可从卫浴透视窗外的山河风景。
卫浴设计
设计重点:备有影音区
编辑点评:备有影音机能的泡澡区,提升沐浴时刻的私密享受。
古典风格大户型 PART1
| 基本信息 | |||||
| 类型 | 大户型 | 设计风格 | 古典风 | ||
| 面积 | 499.5平方米 | 设计师 | 大企国际空间设计 谢启明 设计师 | ||
| 空间格局 | 玄关、雪茄品酒区、客厅、餐厅、厨房、管家室、主卧房、书房、次卧房*3、休闲区、卫浴*5 | ||||
平面布局图
邻近机场、建商原规划以企业总部推案的建筑体,因市场反应不佳,遂找以大企设计操刀、改以豪宅定位重现出发,而受制于梁柱多且低的限制,设计师谢启明于主要公领域取其最大公约数做出造型整合,转换空间特色同时也低调刻划了奢华氛围。
玄关设计
设计重点:拼花地面
编辑点评:拼花处理的玄关地面,仔细端倪有着内圆外方的图腾交错,细节体现质感精神。
客厅设计
设计重点:大气风格
编辑点评:邻近机场、建商原规划以企业总部推案的建筑体,因市场反应不佳,遂找以大企设计操刀,改以豪宅定位重现出发。
客厅设计
设计重点:天花化解梁柱
编辑点评:受制于梁柱多且低的限制,设计师谢启明于主要公领域取其最大公约数做出造型整合,转换空间特色同时也低调刻划了奢华氛围。
客厅设计
设计重点:雷射雕刻板
编辑点评:移动式的雷射雕刻板,夕阳西下镂空的线条里挥洒出戏剧化光影效果。
客厅设计
设计重点:掀式收纳柜
编辑点评:黑镜衬底的休闲区域,搭以上掀式收纳柜形与机能两者兼具。
餐厅设计
设计重点:立体拉门
编辑点评:公、私领域的切换,以餐厅的立体拉门为主题,侧向镜面除为厨房动线也有对称轴线关系思考。
古典风格大户型 PART2
走廊设计
设计重点:走廊作居室过渡
编辑点评:走入柚木皮的沉稳线条,即宣告着公、私领域转换的私密放松。
卧室设计
设计重点:隐藏更衣室
编辑点评:呼应着公领域以雷射雕刻板妆点的落地窗面,主卧房内也依此巧收了更衣间存在感,让大宅有了语汇串连互动。
卧室设计
设计重点:床头主墙面
编辑点评:壁龛形式铺陈的床头主墙,银箔奢华点出主卧风格。
卧室设计
设计重点:清爽风格
编辑点评:在设计上走以清爽风格的次卧空间,形塑优雅的睡眠氛围。
卧室设计
设计重点:长亲房卧榻
编辑点评:备有卧榻的长亲房,贴心要求看护人员二十四小时的照护需求。(幸福空间 供稿)
转载申明:太平洋家居网独家专稿,未经授权不得转载!
推荐阅读:


佚名
2013-9-09 00:15:07

























