时光的脉络里,推开一扇门
微风不燥,阳光正暖,沏一杯好茶,浅酌慢品
绿茵、鲜花、藤椅、茗香、书籍、琴声温柔的环绕
悠悠下午茶,静静慢时光……
本项目业主家庭成员结构为三世同堂,一家七口,两位老人、夫妻二人、两个女儿和一个儿子。男主是低调的企业家,平日工作很忙,女主全职太太,主操持孩子们的学业。屋主一直企盼拥有三代能彼此相伴的美好居家,同享生命历程的欢乐点滴。
项目从施工落地进行了一年半之久,设计师王海东以干净简洁的设计笔触与清晰明了的线条,用一种清醒克制的姿态完成了空间与生活的融合,传达出艺术与生活家和谐相处的美好愿景。
简约美式,造优雅之境
入户玄关,是一个家的序章,保护生活私密性,彰显生活仪式感。走廊尽头,设计师以大理石为背景,层层纹理如“涟漪”荡起,从光到石,以灯具做媒介,投射出祥和、舒适之境。
△一层门厅
一楼客厅是平日家人团聚的地方,设计师表示:三代人的生活起居有所不同,因人而异构筑独立又共融的空间,可以让个体得以安心放逐自我,同时拥有亲密互动的公共场域。
沙发对面舍弃电视,做了钢琴位。这样就形成了一个完整的亲子互动区,家人可以一边喝茶、一边看书,小朋友也可以在旁边练习钢琴。
△一层客厅
钢琴的优美线条,搭配璀璨的水晶吊灯,随着交错的黑白键,一层层的递进,画面渐次安静平和。闲暇时光,主人可以在此弹弹琴,静下来聆听,内心深处的声音。而后跟随音乐,静心感受,踮起脚尖起舞,犹如《Modigliani》电影里Modigliani和 Jeanne在午夜街头跟随光影摇曳身姿的浪漫画面,感受音乐丝丝入扣、动人心弦的美妙。
△一层钢琴区
△一层餐厅
挑空餐厅高度延伸至二楼,6米的挑高让空间聚餐也极具仪式感。2200*1100mm欧式桃花芯木台面餐桌与橄榄绿皮质餐椅,延续了客厅的风格基调。一家人围绕而坐,灯光下谈天说地,共享美味佳肴,在繁忙的生活中增加亲子互动时光。
△一层餐厅
半开放式的厨房设计,自由切换中西厨模式,小型中岛柜补充更多的收纳空间,家人在这里一同料理,加载出更多亲昵的生活场景。
△一层厨房
生活美学,藏巧于方寸细节
斯蒂芬·朱拉说:“每个人的内心深处都潜藏着一座奇妙的花园,会带我们走出生命的困境,遇见真实的自己,只要这个花园需要我们静心、用心去寻找。”二楼书房就是这样一个空间,整齐排放的书籍置于欧式书架上,米白色调予人宁静平和的力量。
△二层书房
书房陈设的艺术之美,看似随心实则精心,自然通透的阳光透过窗口撒入书房内,光影交错,时间将随着光线的流动和沉静的阅读慢慢逝去。
△二层女儿房
女儿房的设计充分尊重了业主女儿的个人意愿,色调柔和,温馨治愈。彰显出天真无邪的童年,静谧美好不失活泼,充分享受人生中奇幻的阶段...
△二层女儿房卫生间
男孩房借由不同的“蓝”呈现丰富的层次效果,无论是床头柜,还是墙面装置、软装布艺,无不流露出“蓝”赋予空间的理性和温暖。角落里Kaws玩偶陪伴守卫孩子的童年,释放出一隅童真与孩子气。
△二层男孩房
作为成长型儿童房配套卫生间,设计师并没有一味的童真符号填充。整个卫浴间以原木为底,灯光做衬,去掉主灯,以简凸奢。
△二层男孩房卫生间
自在回归,舒适的私人场域
三层主要是主人的私人领域,空间继续延续着简美风格的传统历史痕迹和文化风情。“我们希望营造疏朗雅静的氛围,将卧室空间打造成具有认同感的精神领地,成为居住者生活上舒缓精神的空间”,这是设计师王海东赋予主卧软装设计的格调与定位。
△三层主卧
原木色的空间基调,渲染着雅澹的居室氛围。卧室旁是主卧卫生间,设计师根据男女主人需求,分别做了功能分离,梳妆区、沐浴区、如厕区和洗漱区,依次排开,一站式满足夫妻二人需求。
△三层主卧卫生间
衣帽间是日常仪式感的第一个落点,美好生活的新意生发于此,同时这里也是女主人的主场,其首饰作品赋予了空间精致的艺术韵味。
△三层主卧衣帽间
把镜头转向负一层,地下一层结合顶层人士向往尊贵舒适的生活方式,融入东方的禅意和日式的自然,这里是男主一个专属的精神领地。
△负一层主卧
其睡眠欠佳,设计师希望舒适的木给与丝丝抚慰,助力其好眠。
△负一层主卧卫生间
卧室外是一个文化独处区,此处也是主人兴趣的藏宝阁,玉石、器具、松柏等都收藏于此。若有客造访,业主还可与友人席地而坐,观窗外山石流水、赏玩玉器,不亦乐乎。
△负一层茶室
△负二层楼梯间
闲趣之居,享受家的其乐融融
娱乐室是家里孩子们最爱的一隅,在这个随时可以恣意玩耍、与一群朋友玩耍的小天地,学习区、手工活动区、玩乐区一应俱全。
△负二层娱乐室
整个空间除了卡通玩具及细节的可爱装饰,还加入了书桌,贯穿着对未来生活的考虑,为居住空间留有成长与进化的可能。
△负二层影音室
生活是什么?这是很多设计师在面临业主需求时思考了无数次的问题。王海东在这套独栋别墅的设计中,以设计师的专业洞察缔造梦想之家,为业主设计他向往的生活,自然而然地呈现了一个兼具艺术性与功能性的生活空间。
目前,业主及其家人已在别墅中开启了美好的生活,空间内留下了时光的印记,和许多幸福的时刻。
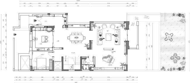
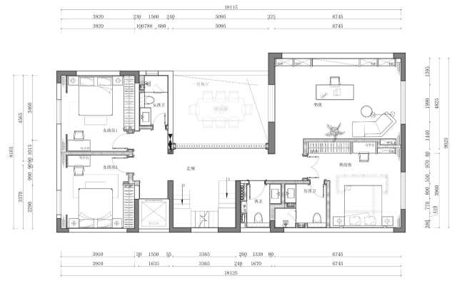
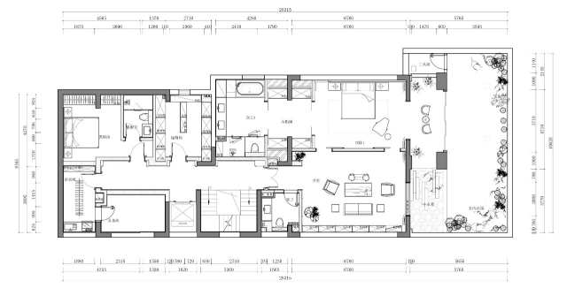
平面户型图
△一层平面图
△二层平面图
△三层平面图
△负一层平面图
△负二层平面图
关于设计师
王海东国家注册设计师
从事室内设计工作18年
西部网特约设计师
西安装饰业协会设计专业委员会
设计理念:艺术源于生活,在生活中追求艺术之美的存在。将空间,色彩,设计回归本位。用心观察生活,让设计与生活互动,让灵感自由释放,从而创造心灵渴望的空间。
所获荣誉:
2012年第三届中国国际空间环境艺术设计大赛(筑巢奖) 银奖
2015年三星杯优秀设计师
2016第三届“京瓷杯”新中式设计大赛?最佳功能布局奖
2018WYDF2018年度中国区100大杰出设计青年
2018亚太设计师大赛豪宅空间钻石奖
2018亚太设计师卓越人物
2019年度40Under40中国设计杰出青年
2019年豪宅空间亚太十大设计师
2019年亚太设计师领军人物
2019 WYDF2019年度大中华区100杰出设计青年
2019创意生活设计金蝴蝶·金奖
代表作品:中铁梧桐苑、紫薇永和坊、龙湖香堤、绿地别墅、大华公园世家、紫楹台、雅居乐御宾府
凡本网注明“出处:其他”的内容,均转载自其它媒体,转载目的在于传递更多信息,并不代表本网赞同其观点和对其真实性负责。 如有侵权及时联系本网站,本网将在第一时间删除!转载内容的准确性由原内容提供者独立承担完全责任!
































评论