项目圆满落地后,恰逢三月,我受邀到业主家中庆贺乔迁之喜,看到别墅外的梨花次第开放,淡雅清新,纷纷扬扬的花瓣散落到花园台阶上,砌下梨花一堆雪,家人共此凭栏杆的美好景象,实在令人心醉不已。(设计师胡均语)
梨花清韵
追寻自然本真
“三千年读史尽是功名利禄,九万里悟道终归诗酒田园。”自古以来,每一个中国人,骨子里都刻着对山水田园的向往,血脉里流淌着天人合一的达观。
自魏晋陶渊明“采菊东篱下,悠然见南山”之后,中国人山水田园的情结便渐渐地成为了一个文化符号。吴均就曾感叹:“鸢飞戾天者,望峰息心;经纶世务者,窥谷忘反。”世俗纷扰中,我们追求精神世界也能有一个栖息家园,在设计师胡均手中,《泸州·凤凰湖》的惊艳落地,便是业主王女士与家人追慕山水,向往自然的倾心所在。
案例简介
项目地址:泸州·凤凰湖
户型面积:300m2
户 型:别墅 共三层
风 格:自然田园
设计周期:2020.03——2020.04
施工周期:2020.05——2021.03
设计团队:胡均·铭轩室内空间设计工作室
主创设计:胡均
执行落地:李铭轩
装修形式:全案落地(全包+主材软装代购)
▲《泸州·凤凰湖》山环水绕、环境优美、视野绝佳
设计说明
别墅的主人王女士是一位优秀的企业家,家庭成员有一对儿女及业主母亲,她对生活充满着热爱。该案例位于泸州凤凰湖(AAAA景区)景区内,作为全家人度假休闲及未来养老的居所,对王女士来说,更向往自己的家是自然田园的风格,能够与山、水、草、木和谐共生,从一种纷扰喧嚣的城市生活到另一种闲适惬意的自然生活,也能够让业主的母亲在这里悠闲快乐的安享晚年。
因网上看到《麓湖·蓝花屿》的设计作品,而接触到胡均·铭轩设计工作室,设计师胡均在与业主交流了想法后,双方理念不谋而合。
他仔细斟酌制定方案,精心为业主打造了这套阳光花园别墅,也成为了泸州·凤凰湖的首创设计,“居花园之上,处山水之间”,他以优雅简洁的设计笔触与独特巧妙的空间布局,力求在设计中创造自然本真的氛围,同时也符合业主实际生活要求的构想。
▲《泸州·凤凰湖》别墅鸟瞰图
花园借景
设计改变生活
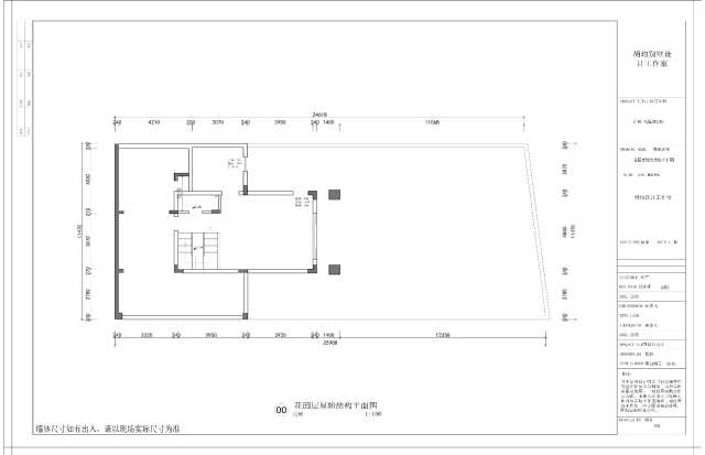
该别墅项目共有3层楼,总面积300㎡,在整个项目中,设计师把花园层做了较大的改动。由于花园层原始格局较小,破碎墙体也比较多。于是设计师胡均重新梳理了这个几个功能空间的动线,把部分墙体敲掉,并把室内的空间面积往外扩,增加了室内的使用面积,将主卧、书房、厨房、餐厅、休闲区等都布置在这层楼,充分展现了设计师绝佳的空间驾驭能力。
▲花园层原始平面图
“屋虽别内外,得景则无拘远近”。设计师胡均巧妙地运用了借景的手法,收无限于有限之中,使用大面积玻璃窗将花园的景色引入室内,让业主一家在室内就能领略到室外的景色。春有百花秋有月,夏有凉风冬有雪,四时之美,尽在其间。
▲花园层设计平面图
▲花园层景观
设计改变生活!通过设计师胡均的借景手法,既扩大了空间,丰富景观效果,也提高花园别墅的艺术品质和审美意趣。业主王女士非常喜欢胡均的这个设计,并因此而改变了自己的生活方式。她现在每天清晨起床亲自给母亲做早点,花园阳光初洒,空气清新,和母亲坐于餐厅共同享受早餐,聊聊家常,生活简单而幸福,窗外景色尽收,令人心旷神怡。
阳光花园
尽是质朴之乐
▲花园景观阳光餐厅
关于餐厅的安放位置,设计师胡均考虑到,因原建筑的花园紧邻小区河道且风景甚佳,故萌生搭建一个阳光房,将餐厅设计在花园处的绝妙灵感。
▲花园层·开放式大厨房
或行或止,难得人间相聚喜。
偶然相聚,最是人间堪乐处。
因业主是美食爱好者,交友甚广,好宴宾客。但原格局户型的厨房十分狭小,设计师便特意将把厨房设置在花园层,做了一间约25㎡的开放式超大厨房,线条简洁优雅,整体空间豁然开朗,王女士甚是满意。
▲花园层·客厅
开阔的客厅大空间,简约不简单。在色彩运用上,设计师用中性的灰度色,从硬装上降低色彩饱和度,来突出家具软装的质感。
深蓝色水纹地毯,挂墙的艺术作品,彰显出主人不凡的品味与格调;再配以灰色的布艺沙发,圆形的茶几,都能够迅速拉近距离。不论是家人休闲放松,亦或是高朋满座,都能够举杯畅谈,共享美食,体会山环水绕,人间至乐。
▲亲近自然、颇具野趣的装饰小物
▲别墅外景及玄关
玄关这个词令人着迷,“玄”字是“幽暗”的意思,“关”是过渡的空间,怎么进入空间是个很讲究的事情。设计师从居住的本源出发,通过现代简练而富有艺术感的设计语汇,打开家门的那一刻,让生活回归精简、纯粹的状态。
▲花园层·阳光书房
在书房梳理一天的工作,看着窗外高低错落、勃勃生机的花园景色,繁忙之余,也可以放松心情,惬意享受平淡、自然、率真的山水草木之景。
▲花园层·阳光书房外景
小园几许,收尽春光。
有槭树红,梨花白,菜花黄。
花园香径,是居住者散步徘徊、体察自然和思索沉吟的绝佳之地。
▲花园层·繁茂绿植
野芳发而幽香,佳木秀而繁阴。
每个中国人的心中都有一个不乏禅意的“诗酒田园”,漫步于此,业主可以与自然景观的充分接触,亲密互动,听水声潺潺,闻花香袭袭,着满目春色。
▲花园美景·阳台绿植
▲花园层·阳台弹唱
▲花园层·在水一方·亲水平台
思考设计的本质,胡均认为设计师应该通过好的设计,引领和改变客户有一种健康、和谐的生活方式,“在水一方”—水上步道的设计灵感正是来源于此。设计师占用了河流栈道的一部分,做了一个水上步道,它既是一种景观的延伸,也让水与景观,产生了一种诗意的浪漫。
清风徐徐,水波微兴,在这里,伴随茶叶的沉沉浮浮,品尝着人生百态,实为妙哉。
全案设计
95%精准把控
泸州·凤凰湖方案是胡均·铭轩室内设计工作室全案创作。设计师胡均学习绘画出身,喜爱音乐、旅行,追求生活美学并赋予情怀表达,业主也十分欣赏,因而结下不解之缘,得以促成95%的方案落地率。对于楼梯和电梯空间改造上的方向设计,也是本案例中实用主义的精髓。
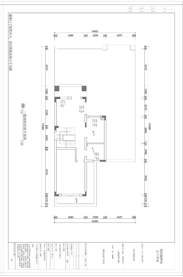
▲一楼原始结构平面图
一层主要是女儿的生活区域,设计师在原始平面的基础上,把墙体往外扩,增加室内的使用面积。
▲一楼平面功能布置图
▲一楼女儿卧室
▲一楼女儿卧室 ▲一楼汗蒸房
女儿的房间空间简净纯粹,删繁就简,自然克制的米色+层次有序的原木墙饰设计,黑白色的的简约线条,淡粉色的床品,为房间注入静谧、舒适、自在的空间格调。
▲二楼原始结构平面图
二层主要是儿子的生活区域。因为原户型之前是没有电梯,设计师考虑到未来花园别墅的养老功能,特意更改了一楼二楼的楼梯位置,并在楼梯的中央部分加建了一个家用电梯,也体现了设计师的前瞻性考虑。室内空间设计设计不仅要考虑当下,更要考虑未来使用的功能性。
▲二楼平面功能布置图
▲二楼儿子卧室
图为业主儿子卧室空间,从休憩区到衣帽间,到卫浴,起居动线便捷流畅。温润的木质家具+棉麻材质床品,搭配皮质床尾凳,蓝白色几何线条地毯,营造出清爽大气的环境氛围。
▲二楼儿子书房
因业主的儿子已成年,作为企业未来的接班人,符合审美及工作要求的书房必不可少。以深色为空间背景的书房搭配木质地板,营造一种安静的学习和工作的氛围,自然光的引入,让室外的绿色美景映入眼帘,这是带有大自然气息的奢华宁静的空间。
▲花园层·主卧
宽大的飘窗,主卧高级定制的木质家具与床品,与房间色彩协调统一的床品,温馨舒适的体验与窗外美景的植入,带来身体与心灵上的放松,尽显优雅与品味。
卫生间里面选择了自然色系的洗手台和米色的砖,提亮了卫生间的整体亮度,也使得空间更加干净。
编者后记
文化的认同,理念的相合,对设计师的信任,得以促成《泸州·凤凰湖》案例的圆满落地。从设计师胡均规划出设计图纸后,业主就十分认可,而且没有更改设计师图纸上的任何一点,这既体现了业主王女士对于胡均的信任认可,也证明了设计师对于业主需求,对于空间格局的精准把控。
正因如此,才能实现如此高的设计还原度,在施工中途也没有掺杂其他想法,从始至终都贯彻着执行着设计师构想的每一个细节。从设计方案到整个项目最后落地成型,达到了95%的还原程度,创造并实现完成客户对于未来之家的理想愿景,和客户共同合作并高还原度落地,这是了不起的地方。
设计师胡均语
很感谢业主王女士对我的信任,我们一起构思、一起憧憬,到最后完成这个作品。设计师就像一个圆梦人,帮自己和业主们一起完成“理想之家”的一切,这过程和结果令人欣喜、着迷。我想,这便是设计师最大的幸福。
关于“我们”
胡均·铭轩室内空间设计工作室
铭轩新饰界装饰工程有限公司,创立于2016年,专注于高端大宅空间设计。
工作室以高端设计为成长支柱,高端施工体系为增值服务,产品配套体系为全案作品支撑,以高端设计、国际化、大师级为长期发展目标,融合视觉美学、软装、灯光、园林设计与功能的结合,为客户量身打造有预算、可执行、可落地的全案作品,为工作室品牌创立独有的形象!
二十年如一日,我们的设计工作严谨、创新、执着、与时俱进,坚守我们的价值观,并选择最优质的辅料和高质量的做工,尽最大的努力为客人装点美好的家。
设计持续生长,情感的付出,空间渐渐丰满,让您心中的梦想之家一点一滴呈现!
受人之托,忠人之事!
公众号:胡均设计工作室
地址:成都.武侯区富森创意B座20楼2008室
首席设计总监·胡均
西南师范大学 美术
中央工艺美术学院 环境艺术 园林与建筑设计
首批中国装饰协会注册室内设计师
米兰Domus设计学院 建筑学
中国室内设计大赛“最佳民族风情别墅奖”
中国设计大赛里斯戴尔杯“二等奖”
国际空间大赛艾特奖“铜奖”
四川十一届建筑装饰设计“银奖”
设计总监·李铭轩
鲁东大学 室内设计
中国装饰协会注册高级室内设计师
中国装饰协会高级会员
青年设计师专业委员会常务理事
凡本网注明“出处:其他”的内容,均转载自其它媒体,转载目的在于传递更多信息,并不代表本网赞同其观点和对其真实性负责。 如有侵权及时联系本网站,本网将在第一时间删除!转载内容的准确性由原内容提供者独立承担完全责任!







































评论