设计说明

本案以简练精致的设计风格为主调,干练的直线几何的艺术形态以及大面积选用黑胡桃谷风棕搭配宫廷白,大胆采用黑白灰的搭配,再利用家具布置添置其他色彩,让空间更加具有独特氛围,打造细腻居家空间,各处散发着干练、理性的现代品味。色彩上,高级灰与原木更表现出轻奢现代的居室。
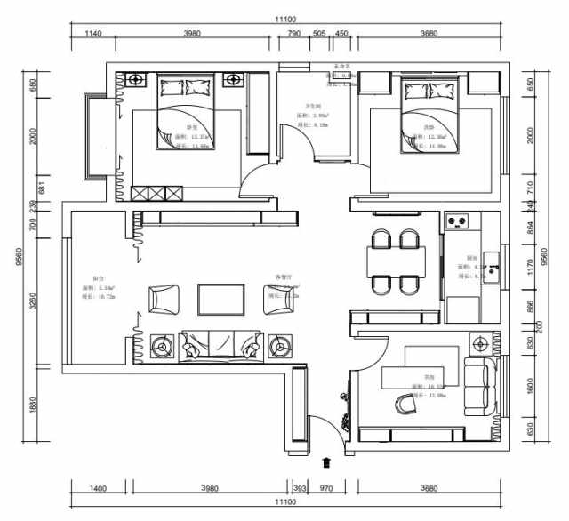
户型信息
项目楼盘:未来城
项目户型:三室两厅
项目面积:85㎡
项目风格:现代轻奢
项目涂装:黑胡桃·谷风棕,宫廷白,烟雨灰

户型布局
玄关入户空间

入户是一个狭长的过道,利用现有的格局,设计一款内嵌式玄关柜,藏露结合,集收纳展示于一体,恰到好处的起到“留白”的意境。靠近入户门处,柜体做开放式挂衣区与换鞋区,方便业主进出换衣换鞋。
客厅接待空间


客厅整体采用黑胡桃·谷风棕与宫廷白搭配,当棕色与白色撞色,更显时尚出彩。墙板通顶设计,拉伸视觉高度。电视墙面设计了回字形电视柜,增加了客厅的收纳空间,让客厅时刻保持整洁。沙发背景墙设计呼应整体的格局搭配,使整个空间风格统一化。
餐厅饮食空间


餐厅与客厅相连,半开放式餐边柜来“填充”墙面空间,让整个布局具备结构区域划分的同时又不显空荡。色调保持与客厅一致,金属元素与玻璃相结合,营造精致的就餐氛围,再以金属与大理石相结合的圆形餐桌,布艺的餐椅,优雅的餐边柜的组合方式,将餐厅打造为一个家庭用餐,聚会休憩的相处空间。
卧室收纳空间

主卧采用现代时尚感爆棚的灰色系主调,床头墙采用橙色乳胶漆搭配一格烟雨灰平墙板,时尚感爆棚。结合实用的通顶衣柜,使空间更显舒适大方,营造出一种舒适安逸的睡眠氛围。
次卧

次卧,取消两侧的床头柜,增添设计了两个通顶的衣柜,以便增加收纳空间。衣柜中下方,留空设计,方便就寝时可以随手放置手机,杯子等物件。
书房思想空间

设计独立书房,承载业主的奇思妙想。放置书桌+沙发组合,约上三五好友畅谈生活理想,书房整墙的书柜,集收纳展示于一体,既起到了收纳的作用,又彰显了业主的品位。
凡本网注明“出处:其他”的内容,均转载自其它媒体,转载目的在于传递更多信息,并不代表本网赞同其观点和对其真实性负责。 如有侵权及时联系本网站,本网将在第一时间删除!转载内容的准确性由原内容提供者独立承担完全责任!













