【太平洋家居网 设计频道】本案设计师在见惯了抄袭之风泛滥的各种案例后,以满足功能需求为主旨,以红与黑为主线,不拘泥于传统的条条框框,在造型和用色方面都比较大胆,塑造个性强烈而又有别于“大路货”的设计作品。设计师认为,“拒绝视觉疲劳”是本案对城市需求的最直接价值所在。
本案设计师简介:
李伟强
姓名:李伟强(Li Wei Qiang)
毕业院校:广州美术学院
大学专业:设计分院环境艺术设计系
学历:大学本科,学士学位
职务:集美公司W组设计总监;广州美术学院客座教师;广州杰森装饰设计工程有限公司总设计师
四大亮点快速导航
亮点一:拓宽客厅面积
亮点二:整合卧室功能
亮点三:时尚个性造型
亮点四:大胆用色
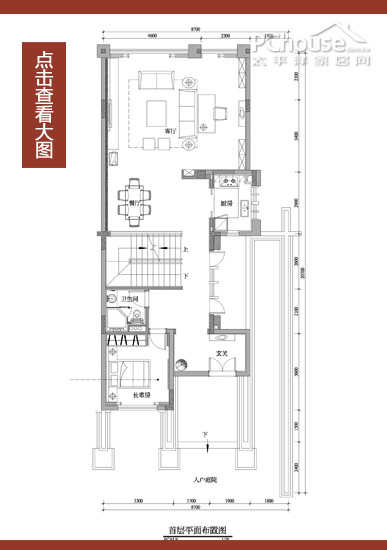
①玄关
首层平面布局图
玄关
▲吸睛亮点:水晶吊灯+马赛克镜子营造奢华大气感
设计解析:玄关面积虽小,但在沉稳的黑色墙面衬托下,水晶灯的华丽被马赛克镜子再度扩大,奢华大气感迎面扑来。
②客厅
首层平面布局图
客厅
▲吸睛亮点:扩大客厅面积,营造通透感
设计解析:原客厅面积较小,设计师去掉无用的露台,对外的墙面全部采用玻璃窗;沙发背面的小空间利用起来,在天花增设一小块反光板,全面营造通透感。
客厅
▲吸睛亮点:钢条+玻璃打造个性乐谱背景墙
设计解析:电视背景墙以不锈钢条结合菱形玻璃,在发光底板的衬托下,延伸到餐厅中,形成如五线谱般的整体自由波浪造型,呼应“乐章”主题,同时延长了客厅的视觉线。
▲吸睛亮点:美观实用的欧式沙发背景墙
设计解析:沙发背景墙颇有点欧式风格,左右两边放置两个收纳柜,可作为酒柜使用;中间挂画下放置一张桌子,即可摆放装饰品,又可满足杂物的收纳需求。
③餐厅
首层平面布局图
餐厅
▲吸睛亮点:红与黑的强烈色彩冲击力
设计解析:黑色的桌椅搭配鲜红的水晶吊灯,给人强烈的视觉冲击力,暗示主人家的热情款待之心。
餐厅
▲吸睛亮点:巧妙的空间划分
设计解析:从客厅延伸到餐厅的背景墙增加的客厅的穿透感,但一尊看似用作装饰的雕塑和餐厅小巧的吊顶则巧妙地做了空间划分,不喧宾夺主,但清晰明了。
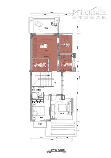
④次卧
首层(左)及二层(右)平面布局图
次卧
▲吸睛亮点:客房落地玻璃窗
设计解析:客房面积狭小,因此舍弃了客人不常用到的飘窗,采用落地窗模式,从视觉上扩大空间面积。
▲吸睛亮点:儿童房个性木纹墙纸
设计解析:儿童房住的是一个爱好音乐的活泼男孩,设计师把整个房间墙面都贴上褐色木纹纹理的墙纸,整体看上去十分“酷”,符合未来艺术家的气质。
⑤主卧
二层平面布局图
主卧
▲吸睛亮点:通过解构的形式划分出床头背景墙
设计解析:时尚的业主当然需要彰显设计感的主卧,床头背景墙以深浅不一的墙纸结合贝母马赛克,通过结构的形式划分出十分有趣的图案。
主卧
▲吸睛亮点:从墙面延伸到天花的“L”造型
设计解析:新颖的背景墙一直延伸到天花上,形成时尚大气的“L”造型,与墙面大大的“L”马赛克拼贴相呼应。
主卧衣帽间
▲吸睛亮点:强大收纳演绎小衣帽间也有大梦想
设计解析:定制的衣帽间复制了主卧墙面的元素,采用褐色底纹+马赛克图案。强大的功能划分满足衣帽的收纳需求,底层还贴心地留出放置鞋子的地方。
主卧书房
▲吸睛亮点:书房通过改造纳入主卧中
设计解析:原空间功能分布得比较散乱,设计师认为设计不是要强调个性,而是在不影响结构的基础上尽一切所能使空间合理、实用。书房是为了满足业主习惯而改变了入口,纳入主卧空间中的。
主卧卫浴间
▲吸睛亮点:浴缸贴镜子,扩大面积
设计解析:主卫除了拥有一面大镜子,浴缸侧面还加上一面小镜子,无论是黄金视觉位还是地面上,都在视觉上扩大了面积,增加了通透感。
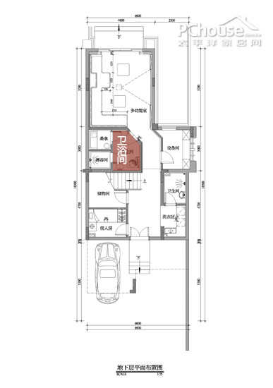
⑥影视厅
地下层平面布局图
影视厅
▲吸睛亮点:红色软包演绎完美吸引效果
设计解析:鲜艳的红色让到达影视厅的人会感受到热情快乐的心情,沙发背景墙全部贴上软包,加上地毯形成一个完美的吸音、隔音效果,发射性条纹地毯还让空间产生了视觉冲击力。
⑦公用卫浴间
地下层平面布局图
公用卫浴间
▲吸睛亮点:通过局部的材质对比凸显空间的品质感
设计解析:公卫除了选用对比强烈的黑白红三色作为主色调,镜子的背景墙使用了鹅卵石纹理,通过局部的材质对比凸显空间的品质感。
设计师说:在温和的米色基调上有机地加入了鲜艳的红色与沉稳的深褐色,形成良性的对比,既给人一见难忘的鲜明感,又不至于因过分强调个性而忽略其居住空间的本质。在造型方面则选择在重点区域浓墨重彩,而其它空间简约淡化的手法处理,如客厅电视背景墙、主卧床头背景墙等。
小编点评:中庸而不平庸,华丽而不浮夸,独特而不小众是本案最大的特点与亮点。
各楼层平面布局图:
首层平面布局图
二层平面布局图
地下层平面布局图
编辑的话:如果你喜欢时尚个性,欣赏这位设计师的空间利用智慧,或需要装修、改造房子,这个案例是很好的参考对象。
案例提供:集美公司W组
设计总监:李伟强
擅长风格:综合
我是设计频道的编辑,无论你是设计师还是业主,只要满意你的案例设计,乐意和大家分享,都欢迎把案例发至邮箱:1075162657@qq.com。
转载申明:太平洋家居网独家专稿,未经授权不得转载!
推荐阅读:


佳佳
2013-12-30 00:16:07



































