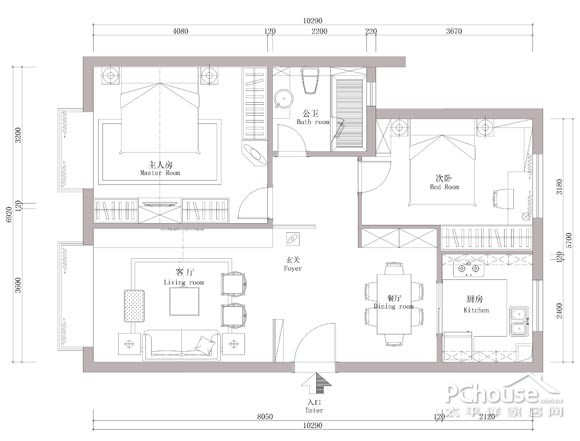
【太平洋家居网 设计频道】户型条件不错,光线充足,客厅、餐厅、厨房、两个卧室都有窗户,客厅和主卧都有飘窗,景观良好,户型方正,空间分布也比较的合理。唯一让网友纠结的是,门口正对着卫生间,给人感觉不太舒服。
42楼网友原始户型图
至于风格,网友没有固定的限制,2房2厅64平米的空间,5万元的装修预算,设计还是得偏实用。
下面我们来看一下设计师给出的设计方案:
设计方案
本案在餐厅和次卧的改动性最大,主要是两个空间的墙体有变,增加了餐边柜和移动次卧的入门。网友的图没有显示剪力墙的位置,所以如果真的能这样改的话,那这个方案是可实施的。
网友没有过多的要求,所以设计给它设计了一个简中风格的效果。整体颜色以米黄色为主(枫木饰面板),加以青花瓷的配饰装饰,使整个空间既明快又很有中式文化气息!
转载申明:PChouse独家专稿,请勿转载!违者本网将保留追究其法律责任的权利!
以下是设计师推荐的单独空间的参考图:
玄关柜参考设计
玄关:在进门出做了屏风,从平面可以看到我们的大门对着卫生间的门,这样回到家很不舒服,所以我们要做玄关挡下。其材料是木线条,外面夹磨砂玻璃,这样就很好搞卫生。左边的鞋柜也是同样的道理。
电视背景参考设计
电视背景:客厅的电视背景墙以防大理石爵士白的砖装饰,柜体以抽屉来做收纳功能。
客厅参考设计
客厅沙发:沙发的软装方面以米白色的布艺沙发,加以中式的青花瓷的台灯来点缀。
转载申明:PChouse独家专稿,请勿转载!违者本网将保留追究其法律责任的权利!
客厅地台:客厅的尽头有一块阳光充足的飘窗,可以采用地台的设计,下可做储物,傍边依据地台在增加一个柜子,不仅多了一个休息的角落,更重要的是增加不少的收纳。
餐厅参考设计
餐厅:餐厅结合客厅的整体色调,做了实用又美观的餐边柜,座椅的软垫和客厅的沙发布艺一致,营造出整个整体大方的明亮空间。
转载申明:PChouse独家专稿,请勿转载!违者本网将保留追究其法律责任的权利!
主卧衣柜参考设计
主卧衣柜:主卧在满足了衣物的收纳功能外,正对床的衣柜里把电视里装在衣柜里面,平时把衣柜门关上的时候是看不到电视机的,只有看电视的时候,把衣柜门拉开才看得到。整个看起来既美观又实用。
次卧书房参考设计
次卧&书房:次卧以睡房和书房结合,窗台位置做个书桌,在左边位置延长它的使用功能,做一排的矮柜,这样就可以拿出了很多的放书的位置。
次卧柜子参考设计
次卧:次卧的右手边还有一面不完整的墙面,与其空白,不如增加一面柜体,与衣柜不同,可以采用吊柜,可以落地柜,但中部要留出位置,就可以省床头柜的空间,随手物品书籍就不用担心收纳了。
转载申明:PChouse独家专稿,请勿转载!违者本网将保留追究其法律责任的权利!


佚名
2012-3-06 13:52:15












