图书馆楼梯设计
图书馆楼梯设计
图书馆阅览室设计
图书馆顶部设计
忘记那些在古典灯具照耀下宽大昏暗的红木桌吧,忘记那些舒适豪华的扶手椅以及有着印花书皮包背的书籍吧;21世纪的图书馆通过一系列高端精密的媒体设施的采用,极大地提高了整体功能,成为当代标志性建筑之一。
位于德国的奥伯基希媒体中心是一个极好的例子,完美阐释了图书馆这个概念是如何被现今的高效社会重塑改造的。这座三层楼的建筑同时充当了奥伯基希地区的文件存档中心、藏书室、媒体中心以及一个举办各种社交活动的场所。Wurm+Wurm设计工作室超越自我,设计出了这个庞大的、超现实的,同时也是极为重要的项目。
-----------------------------------------------------------------------------
编辑推荐:
大书柜大气场 15个家庭图书馆设计
//sheji.pchouse.com.cn/zuopinku/shinei/1105/88379.html
数码时代的“黑钻” 丹麦皇家图书馆
//sheji.pchouse.com.cn/zuopinku/jianzhu/1010/38788.html
此马非凡马 2010年最新图书馆建筑设计
//sheji.pchouse.com.cn/zuopinku/jianzhu/1009/33920.html
独特的拱形空间 多摩美术大学图书馆
//sheji.pchouse.com.cn/zuopinku/jianzhu/1008/29747.html
-----------------------------------------------------------------------------
转载申明:PChouse独家专稿,请勿转载!违者本网将保留追究其法律责任的权利!
图书馆阅览室设计
图书馆阅览室设计
图书馆照明设计
图书馆内部空间设计
在建筑设计上的创新,同时又保持着与公众的友好互动,奥伯基希媒体中心无疑是一件极为成功的作品!
当你第一次看向那些拥有奇怪雕刻而显得对比鲜明的外观(正面,假象),任何一个观看者都会疑惑这座建筑到底有什么用途。奇特的外表、直角圆角的剪切使用和螺旋形楼梯使这座建筑整体看起来颇为古板。此外,全白的墙体完善了整体设计,令人印象深刻,却无法理解。然而,再看第二眼,顽皮的阳光透过水晶般明亮的窗户偷偷摸摸地照射进来,给观看者带来了明亮的彩色内部环境。这一瞥所见另一面的诱惑,使人热切地想要去探索复杂的迷宫内部。
图书馆外观建筑设计
图书馆外观建筑细节设计
图书馆外观建筑细节设计
图书馆外观建筑细节设计
图书馆外观建筑设计
图书馆外观建筑设计
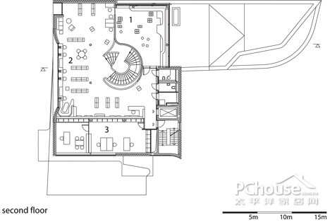
同样,就内部设计来说,首先被注意到的就是它的宽敞整洁和合理的布局,精心地营造出了一种轻松愉悦的类似于“禅”的氛围。此外,尽管书架之间的空间并不小,每层楼依然单独设置有个人学习室和阅览室,这些剩余空间未被充分利用。比如,在楼层之间采用适量的螺旋楼梯相互连接——由于其合理的摆设和圆滑的造型,被认为是媒体中心最引人注目的部分——这样就可以充分利用各楼层的剩余空间了。
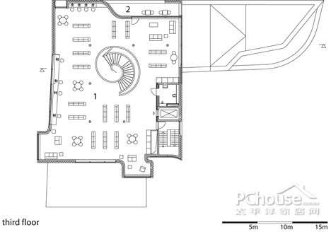
图书馆平面图设计
图书馆平面图设计
图书馆平面图设计
图书馆平面图设计
图书馆平面图设计
屋顶开有巨大的圆窗,大面积地引入自然光源。走廊则通过精巧设计的侧面窗户和阳台设计,最大程度地利用阳光的照射,同样可以方便人们阅读。最后,同样重要的是,特别为儿童设计的区域,这是另一个开拓式的创新,也是极为实用主义的,拥有多种多媒体设施和异乎寻常的设计。
这一宏伟的当代建筑项目从2007年开始计划实施,用三年的时间修建而成。在过去几年中激励了全世界为数众多的建筑和设计爱好者,赢得了广泛的赞赏。公众普遍认为德国奥伯基希媒体中心是欧洲最迷人的图书馆之一,同时也更为期盼Wurm+Wurm设计工作室未来的更多设计作品。(design42day提供)
-----------------------------------------------------------------------------
编辑推荐:
大书柜大气场 15个家庭图书馆设计
//sheji.pchouse.com.cn/zuopinku/shinei/1105/88379.html
数码时代的“黑钻” 丹麦皇家图书馆
//sheji.pchouse.com.cn/zuopinku/jianzhu/1010/38788.html
此马非凡马 2010年最新图书馆建筑设计
//sheji.pchouse.com.cn/zuopinku/jianzhu/1009/33920.html
独特的拱形空间 多摩美术大学图书馆
//sheji.pchouse.com.cn/zuopinku/jianzhu/1008/29747.html
-----------------------------------------------------------------------------
转载申明:PChouse独家专稿,请勿转载!违者本网将保留追究其法律责任的权利!


佚名
2011-6-23 13:43:17




















