【太平洋家居网 设计频道】习惯了军旅生活的业主,希望把军旅生活的回忆搬回家。擅长于玩弄色调搭配的马文龙设计师,为退役军人一家翻新了一套二手房,视丈夫为偶像的女主人给了设计师灵感,设计师为此打造了具有简俭军旅风的三居室。
马文龙设计师简介:
| 设计师档案 | ||
| 工作室 | 杭州马文龙室内设计工作室 | |
接案风格 | 混搭风格、美式风格 | |
| 擅长案例 | 重彩浓墨的大小户型 | |
| 联系方式 | 地址:杭州拱墅区七古登建华文化创意园区4号楼209-211 | |
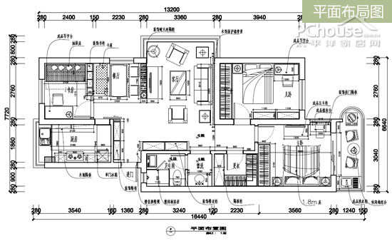
设计说明:本套案例实用面积90平,是位于浙江的一套二手房,预算15万左右。因原始格局较合理,设计师没有对格局作任何调整,也没有敲掉任何一堵墙,这给业主省下了不少装修费用,简约的军旅风,只需要在色调上作合适的搭配,加上家具的刷漆翻新,就达到了理想的居室效果。
马文龙设计师提供的平面布局图:
(点击查看大图)
(点击查看大图)
亮点抢先看:
PART 1:玄关设计
设计亮点:嵌入式鞋柜节省空间
设计师解读:狭窄的玄关过道,为了增加收纳柜又不阻碍出入,设计师巧妙地把柜子嵌入墙面。下方留有空隙放置日常换穿的鞋子,腾空的柜子显得更轻盈。水绿色+竖条纹,进门第一眼已有军旅风。
PART 2:客厅设计
设计亮点:传统小方厅,空间更实用
设计师解读:仅有11平方米的客厅,格局方正,利于家具的摆设。依然保持水绿色的沙发墙,利用线板切割成一个个小方块,层次感十足。黑色沙发与浅色墙面形成强烈对比。混搭的田园风格碎花布艺沙发则散发柔和之感。
设计亮点:半高耐火砖作电视墙
设计师解读:电视墙只设计了一半的高度,透过电视墙,可以遥望餐厅,视觉范围拓宽了不少。隔断墙保留砌砖的纹理,处于室内,显现了一道特别的装饰味。电视墙正上方则是屋内的横梁,巧妙的修饰使期隐藏起来,又不失空间划分的作用。
设计亮点:地面独特的菱形跳色拼砖
设计师解读:地面的瓷砖以菱形跳色拼接,分别是杏色与咖啡色的搭配,表面有古旧的纹理,粗糙不反光的表面打造了时代的复古感。此外,客厅一整面墙的采光极佳,给水绿色的墙面增添了亮丽的效果。
设计亮点:收纳柜高低错落,丰富空间层次
设计师解读:电视柜高度经过了严格的测量,即便加上机位的高度,也不会阻碍往餐厅望去的视线。电视柜旁边的五斗柜稍微高出,丰富的分格,方便了收纳的分类,正对柜子上方还有一个不锈钢架用以收纳换穿的衣物。
PART 3:餐厅设计
设计师解读:餐厅位于电视墙后方,打造成卡座式格局。木制吊顶往上凹陷,其木质纹理与餐桌相呼应,使得空间更有质感。现场订制的卡座下方有收纳空间,上方的墙面钉上了搁板收纳,长板凳紧靠的电视墙,也是收纳柜,细节处隐藏了整个空间的收纳机关。
设计亮点:餐厅直望客厅,空间相隔又相连
设计师解读:通过半高电视墙营造出来的大空间效果,客餐厅相互遥望,使得处于两个空间的人也能相互交谈,增进感情。
设计亮点:分层色彩打造地道军旅风
设计师解读:餐厅采用上层奶黄色,下层水绿色的色彩搭配,奶黄色的上层有泛黄泛旧的时代味道,水绿色带竖条纹的卡座,是军旅风的设计体现。坐在里面,主人仿如回到那些难忘的艰苦日子。
设计亮点:嵌墙式木质餐边柜
设计师解读:与客餐厅相对的墙面,有一整面墙被用来打造了到顶餐边柜,同样是嵌入墙壁的设计,节省空间又增加了收纳与展示空间,一举多得。
PART 4:书房/客房设计
设计亮点:多功能结合的空间
设计师解读:书房位于餐厅后方,空间里只有简单的一书柜、一书桌与一床榻。床榻是主人看书小憩之用,也是招待客人留宿的极佳之地。
设计亮点:简俭的木质书桌
设计师解读:一体式电脑桌融合了书桌的功能,上方订制开放式吊柜,给绿植与书籍安静呆着的角落。嫩黄色的墙面,让阅读者提神醒脑。对军旅风格钟爱的主人,甚至把水绿色用到了门片和吊柜上,结合简朴的木质家具,体现了军人对自己生活的苛刻要求。
设计亮点:藏于角落的整体书柜
设计师解读:遵循节省空间的原则,设计师找来木工,订制到顶书柜,柜体与餐边柜风格一致。但左下角只做成简单的木面,为的是不会因开柜门的需求而频繁移动床榻。透明的玻璃柜门,展示军人阅读的爱好,一室满满的书香。
PART 5:卧室设计
设计亮点:简化的家具布局
设计师解读:卧室位于整间房子的深区,私密性有一定保障。考虑空间较小,设计师只安排了一铺床,两个床头柜,外加一个五斗柜。简洁的布局让主人睡眠更舒适而不显得过分拥挤。
设计亮点:嵌墙式衣柜节省空间
设计师解读:小卧室容不下整体的衣柜设计,设计师为主人设计了嵌入墙体的到顶衣柜,容量比普通衣柜更大。百叶门片通风透气,水绿色滚边呼应了军旅风格的主题。
设计亮点:深色实木床彰显沉稳大气
设计师解读:习惯了军旅生活的单调,主人希望在新家寻找温暖,温馨的粉红色是设计师为主人挑选的。深色实木大床与墙面形成强烈的色调对比,整齐铺设的床单延续了军营生活的好习惯。
设计亮点:多功能生活阳台
设计师解读:全屋的阳台只有主卧拥有,光线充足的区块承担了很多生活功能,晾衣服,主人的休闲阅读需求等,都在这个阳台实现。唯一光照不足的一端,也被设计师利用起来了,打造了洗衣池和吊柜,方便了女主人清洗衣物。
PART 6:儿童房设计
设计亮点:通透明亮的小空间
设计师解读:儿童房位于主卧旁边,拥有与主卧同一侧的光照来源,小小的空间显得通透明亮,更适合儿童的成长。家具散发无害的木质清香,父母再也不用担心孩子的健康。
设计亮点:缤纷墙纸+卡通窗帘
设计师解读:儿童房没有使用墙面漆,而是采用墙纸铺设,淡粉色的纸面上铺满花朵图案,是适合女孩卧室的风格。窗帘还特意挑选了可爱的动物图案,让儿童房的空间更多彩缤纷,气氛更活跃。最吸引眼睛的吸顶灯,竟然是苹果公司的LOGO,忽然让这个小空间显得时尚又可爱。
设计亮点:紧凑的家具布局
设计师解读:设计师在儿童房订制了一整套家具,把紧凑的空间利用到位。书柜+书桌一体化结构,方便了小女孩的阅读与学习。床脚一端,预留了钢琴位置,为孩子提供课余爱好的练习角落。
PART 7:厨房设计
设计师解读:厨房呈现狭长格局,设计师为主人订制了吊柜与地柜,所有能用上的墙面都铺满了柜子,在家简俭烹饪的军嫂有了发挥厨艺的小天地。依然是绿色+竖条纹的风格搭配,但考虑厨房的耐脏需求,改为墨绿色,依然美观耐看。
设计亮点:一应俱全的家电设备
设计师解读:每一个电器都有自己安放的角落,庞大的冰箱也找到了它的专属位置,合理的安排,给主人烹饪的流水线操作带来了便捷,小小的厨房竟然可以如此符合生活所需,更没有让任何一道工序受到影响。
设计亮点:简易搁板变吧台
设计师解读:在狭窄的厨房怎样腾出一张吧台供小尝下午茶之用?答案就在剩下的一面墙上。设计师在一定高度的墙面上加了长搁板,变身小吧台,搁板下方还藏住挂钩作收纳。从此,女主人烹饪也有了小憩的一角。
PART 8:卫浴设计
设计亮点:卫浴干区外移
设计师解读:原本处于同一空间的干湿区,设计师在中间砌了一堵墙,把干区分隔出来,让湿区更有私密性,也提高了一家三口的生活效率。干区墙面主打鲜黄色,视觉冲击力极强,也提高了这个封闭的空间,下半部则是蓝灰跳色拼砖,防滑且混搭得耐看。
设计亮点:封闭的湿区
设计师解读:湿区位于较封闭的空间内,设计师在里头也设计了玻璃淋浴室,再次把湿区二次分隔。女主人认为,小卫浴也有好处,冬天洗澡会更温暖,诺大的浴室反而冷清了。
设计总结:在只有90平的面积里,容下了三个房间,不得不佩服设计师的空间魔法。而让空间魔法制胜的关键,在于每一个大柜子的嵌墙式结构,这家房子几乎所有非承重墙的墙面,都嵌入了柜子,再大的柜子也看不出占用了多少空间,再多东西也能收住了!


欣欣
2014-4-25 00:15:21

































