【太平洋家居网 设计频道】网友希望的装修风格是简约清新,带点暖色系,虽然对重点装修空间无要求,但却提出了几个明确的需求,比如餐厅客厅分配合理性、生活阳台以及书房等的问题,叶青设计师都一一给出了对应的方案。
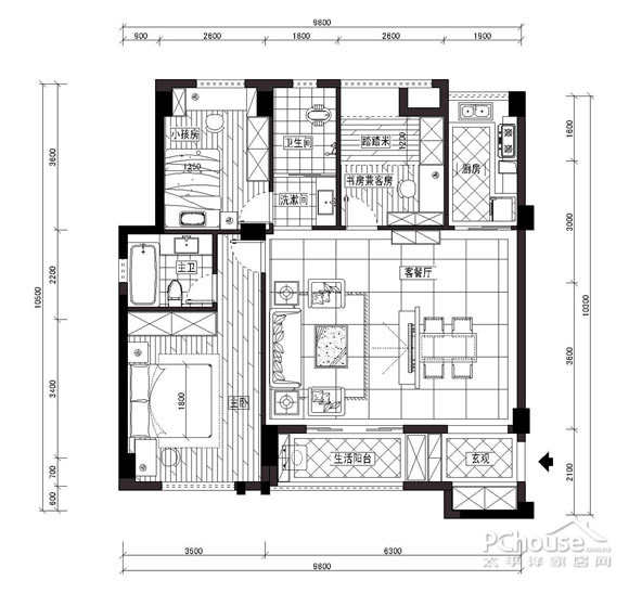
户型图
网友详细需求:
1、客厅和餐厅合理性
2、入户花园要实现生活阳台(是否要玄关阻隔?)
3、厨房不要开放,可以透明阻隔
4、其中一个房间有书房和客房并用,客人来客房,平时书房
5、房间比较紧凑,希望装修出空间感十足
6、保留客卫的干湿分离
7、有较强的收纳空间
设计师对原始户型点评
户型优点
1、整个户型比较周正,采光通风都比较好。
2、进门有一个很大的入户花园。
3、客卫生间干湿分区。
户型不足及建议:
1、没有生活阳台,建议利用入户花园隔出一个玄观和生活阳台。
2、客餐厅空间布局独立不明显,建议利用电视背景将其区分。
点击查看大图
整体设计说明:
1. 用鞋柜和储物柜将入户花园分隔成独立的玄观和生活阳台,即解决了洗晒衣服的问题,又有较强的收纳空间。
2. 客厅采用3+1+1组合沙发,简单的沙发背景装饰,配合简易的电视柜,客厅显得很现代时尚。
3. 将入户花园的窗拆除,在客厅与生活阳台中间装上隔断门,将二个区分隔开。
4. 小孩房利用窗与柱的位置,解决小孩做作业的问题,
5. 书房兼客房采用踏踏米,这样平常可以做为休闲区,客人来了则可当床用。
6. 厨房采用L型转角厨柜设计,把门洞扩大,采用艺术玻璃隔断门。
7. 客厅采用800*800的地板铺设,三间房采用复合地板,卫生间和厨房采用300*300的防滑砖
更多免费设计专题回顾:
免费设计第24期:49VS90 小户型收纳实战
//sheji.pchouse.com.cn/mfsj/1203/189183.html
免费设计23期:多功能收纳 75vs65二居室设计
//sheji.pchouse.com.cn/mfsj/1203/184659.html
免费设计22期:收纳为主 2套80平小户扩容法
//sheji.pchouse.com.cn/mfsj/1201/169544.html
免费设计21期:90vs59 不同面积二居室收纳方案
//sheji.pchouse.com.cn/mfsj/1112/160331.html
转载申明:PChouse独家专稿,请勿转载!违者本网将保留追究其法律责任的权利!
以下是推荐的参考效果,非专门设计的效果:
玄关参考效果
玄关:入户花园分为独立的玄关和生活阳台,入手左边是玄关柜,上半部为鞋柜,下半部为可抽拉的储物箱,还可以做穿鞋凳,柜体要做得和墙体一样厚,看起来平整有嵌入式的效果。
生活阳台:将入户花园的窗拆除掉,在客厅与生活阳台中间装上隔断门,将两个区分隔开。
电视背景参考效果
客厅:采用3+1+1组合沙发,营造比较平和舒适的客厅环境,至于电视背景的变化就比较大,针对网友客厅餐厅的区分合理性,设计师选用一个半隔断式的电视柜,隔开了餐厅和客厅的空间。
厨房参考效果
厨房:网友不接受开放性厨房,那么就选用推拉式的玻璃门,保留采光具有设计感,L字型的厨房设计比较常见,如果厨房的采光十分良好的话,可以尝试一下黑白瓷砖,具有强烈的视觉对比度,使用起来耐脏耐旧。
更多免费设计专题回顾:
免费设计第24期:49VS90 小户型收纳实战
//sheji.pchouse.com.cn/mfsj/1203/189183.html
免费设计23期:多功能收纳 75vs65二居室设计
//sheji.pchouse.com.cn/mfsj/1203/184659.html
免费设计22期:收纳为主 2套80平小户扩容法
//sheji.pchouse.com.cn/mfsj/1201/169544.html
免费设计21期:90vs59 不同面积二居室收纳方案
//sheji.pchouse.com.cn/mfsj/1112/160331.html
转载申明:PChouse独家专稿,请勿转载!违者本网将保留追究其法律责任的权利!
餐厅参考效果
餐厅:电视背景后面就是餐厅的位置,由于电视柜是半隔断式的,那么餐厅和客厅的装修风格必须一致,餐厅的吊灯设计不可缺少,因为关乎到了客厅和餐厅的氛围。
卧室参考效果
卧室床头参考效果
主卧:主卧以中性色为主调,使其温馨和谐,衣柜移门采用镜面的效果,无形中增大了主卧的空间。床头背景的可选用温馨色系的壁纸,傍边可安装隔板,搭配壁纸展示效果更佳。
儿童房参考效果
儿童房:儿童房利用窗与柱的位置,在窗台边上设计出一个书桌,墙上和书桌边上可根据阅读习惯,开发更多的收纳空间,同时解决小孩做作业的问题。
休息室参考效果
书房兼客房:采用榻榻米或者地台的形式,这样平常可以做为收纳储物区,客人来了则可当床用。 旁边可设计整体书桌书柜,就可以集储物间、书房、客房为一体了。
卫浴间参考效果
卫浴间:客厅卫浴干湿分明,这是网友比较满意的一点,十分良好的格局,只需在瓷砖的铺贴和家具的选用上注意和客厅风格一致即可。
更多免费设计专题回顾:
免费设计第24期:49VS90 小户型收纳实战
//sheji.pchouse.com.cn/mfsj/1203/189183.html
免费设计23期:多功能收纳 75vs65二居室设计
//sheji.pchouse.com.cn/mfsj/1203/184659.html
免费设计22期:收纳为主 2套80平小户扩容法
//sheji.pchouse.com.cn/mfsj/1201/169544.html
免费设计21期:90vs59 不同面积二居室收纳方案
//sheji.pchouse.com.cn/mfsj/1112/160331.html
转载申明:PChouse独家专稿,请勿转载!违者本网将保留追究其法律责任的权利!


佚名
2012-4-01 11:46:57












