【太平洋家居网 设计频道】3房2厅,主卧带有卫浴间,网友打算把次卫改为2个衣柜,同时希望有更多的嵌入式收纳空间,毕竟3个房间的面积比较平均,收纳设计还是尤为重要。
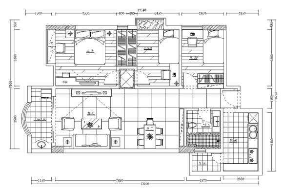
户型图
首先来看看网友的主要需求:
整家希望以白色系列为主,简约明亮风格。
希望能尽量利用空间,做一些巧妙的收纳空间,例如隐形柜子之类的
进门处的墙壁能否做一个大鞋柜?
还想在饭厅做个入墙式的酒柜,不知道怎么安放和设计
主房能否做一个飘窗设计,是化妆台之类的,不太占地方,巧妙运用的
中间的房间做小孩子房,怎么做设计好?
下面我们来看看设计师给出的设计方案:
查看点击大图
整体设计还是以实用为主,收纳的设计必不可少,改动最大的是把次卫打掉,改成主卧和儿童房的衣柜,可以为2间面积不大的房间解决衣物收纳的问题。另外,根据网友的具体需求,主卧的窗台设计成书桌的形式。至于嵌入式的收纳设计,除了3间房间的衣柜,还有入门与客房共墙的玄关柜,以及厨房餐厅的嵌入式的酒柜。
更多免费设计专题回顾:
免费设计25期:78vs76 三居室收纳设计
//sheji.pchouse.com.cn/mfsj/1203/191991.html
免费设计第24期:49VS90 小户型收纳实战
//sheji.pchouse.com.cn/mfsj/1203/189183.html
免费设计23期:多功能收纳 75vs65二居室设计
//sheji.pchouse.com.cn/mfsj/1203/184659.html
免费设计22期:收纳为主 2套80平小户扩容法
//sheji.pchouse.com.cn/mfsj/1201/169544.html
转载申明:PChouse独家专稿,请勿转载!违者本网将保留追究其法律责任的权利!
以下是设计师推荐的参考效果,非专门设计的效果:
玄关:嵌入式的玄关柜大容量的收纳进门物品,同时在细节设计上,中部掏空,下部悬起,顶部可以留出安装照明,营造玄关效果。
玄关参考效果
如果不是很顾及风水的话,可以安装些许反光镜,营造通透的视觉效果。
客厅参考效果
客厅参考效果:既然已经有了该有的收纳空间,为了客厅的美观大方,可以免去电视柜的收纳,改为简单的背景墙即可,配上落地或者悬起的简易电视柜,应该是网友所期望的风格。
餐厅酒柜参考
酒柜参考:嵌入式酒柜可以收纳的同时,还是一个很不错的餐厅背景。
厨房参考效果
厨房参考:厨房建议采用L型或者一字型的设计,现代风可以是烤漆亮光的橱柜,田园复古一点的仿木纹的橱柜,感觉很有味道,推荐这一款淡淡的美式田园风格厨房设计。
更多免费设计专题回顾:
免费设计25期:78vs76 三居室收纳设计
//sheji.pchouse.com.cn/mfsj/1203/191991.html
免费设计第24期:49VS90 小户型收纳实战
//sheji.pchouse.com.cn/mfsj/1203/189183.html
免费设计23期:多功能收纳 75vs65二居室设计
//sheji.pchouse.com.cn/mfsj/1203/184659.html
免费设计22期:收纳为主 2套80平小户扩容法
//sheji.pchouse.com.cn/mfsj/1201/169544.html
转载申明:PChouse独家专稿,请勿转载!违者本网将保留追究其法律责任的权利!
儿童房参考效果
儿童房参考:明亮的色彩,丰富的墙纸,一处好的飘窗光线充足,只要摆好家具位置,面积小不会是问题。
卧室参考效果
卧室设计:卧室不用大动干戈,实用即可,简单的墙纸和灯光的配合,就可以有温馨的感觉。
窗台参考效果
至于窗台的利用,可以做一个延伸书柜,充分利用窗台的空间和光线。
衣柜参考效果
进门衣柜可以在设计上更为灵活,半架式收纳以及弧形角度的处理,十分值得借鉴。
卫浴间参考效果
卫浴间参考:干湿分明的设计,预留一个淋浴房的空间很重要。
更多免费设计专题回顾:
免费设计25期:78vs76 三居室收纳设计
//sheji.pchouse.com.cn/mfsj/1203/191991.html
免费设计第24期:49VS90 小户型收纳实战
//sheji.pchouse.com.cn/mfsj/1203/189183.html
免费设计23期:多功能收纳 75vs65二居室设计
//sheji.pchouse.com.cn/mfsj/1203/184659.html
免费设计22期:收纳为主 2套80平小户扩容法
//sheji.pchouse.com.cn/mfsj/1201/169544.html
转载申明:PChouse独家专稿,请勿转载!违者本网将保留追究其法律责任的权利!


佚名
2012-4-17 15:33:17













