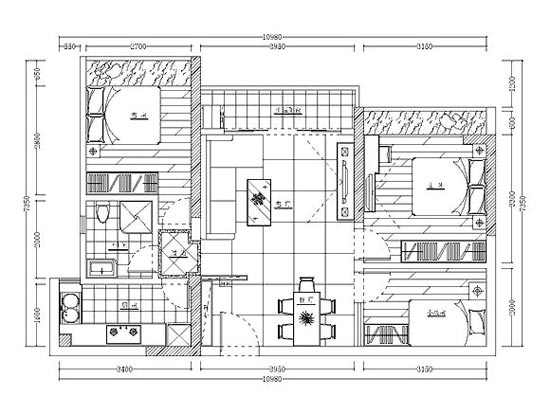
【太平洋家居网 设计频道】2房2厅改为3房,网友最初的设想是把主卧室一分为二,整体的装修要求是,轻装修重装饰,以简约现代为主,看起来干净利落、温馨舒适。从户型图上来看,衣柜的初步位置也已经落实,看得出来是一个十分精明的网友噢。
户型图
首先来看看网友的3点主要的需求:
①主卧希望做成一大一小,小的为儿童房
②卫生间较小,希望能有小型沐浴房,做到干湿区分
③厨房里采光较差,窗户小,希望装修后能明亮一些
下面我们来看看设计师给出的设计方案:
点击查看大图
根据网友3点主要的需求,设计师主要做了2点比较大的改动,还是主卧室的一分为二,幸好隔墙不是承重墙,就可以划出与一大一小的房间,方便父母照顾小朋友。另外,由于进门正对客厅,所以设置了一个屏障式的玄关,左手边是储物柜,右手边是餐厅。
至于细节收纳方面,进门的玄关柜,每个房间都有靠墙的衣柜,以及卧室和客房飘窗的运用,都考虑到简单实用轻装修重装饰的原则,把该利用的充分利用好。
更多免费设计专题回顾:
免费设计25期:78vs76 三居室收纳设计
//sheji.pchouse.com.cn/mfsj/1203/191991.html
免费设计第24期:49VS90 小户型收纳实战
//sheji.pchouse.com.cn/mfsj/1203/189183.html
免费设计23期:多功能收纳 75vs65二居室设计
//sheji.pchouse.com.cn/mfsj/1203/184659.html
免费设计22期:收纳为主 2套80平小户扩容法
//sheji.pchouse.com.cn/mfsj/1201/169544.html
转载申明:PChouse独家专稿,请勿转载!违者本网将保留追究其法律责任的权利!
以下是设计师推荐的参考效果,非专门设计的效果:
客厅参考效果1:现代风格的客厅设计,电视背景可以选择浅色大理石铺贴,使得客厅整体不压抑,但这时就不可做过多的收纳设计,小户型可以学习借鉴下。
客厅设计
客厅参考效果2:沙发采用L型的摆设,不影响视觉开阔的同时,使得家里的客厅氛围更为轻松,沙发背景可随意的挂上几幅画,不必限定风格,现代简约总是风格百搭的。
玄关:由于进门正对客厅,所以设置了一个屏障式的玄关,左手边是储物柜,右手边是餐厅。
玄关设计
左手边的玄关鞋柜,因为两边有墙体依附,那么就可以做成悬吊的形式,下方可以摆放常用的拖鞋,还可以提高鞋柜的空间感。考虑到客厅有大的落地阳台,所以在屏风材质的选择上,不用太过于顾及透光性,也可以做更多的展示空间,推荐一款封闭式的展示墙。
更多免费设计专题回顾:
免费设计25期:78vs76 三居室收纳设计
//sheji.pchouse.com.cn/mfsj/1203/191991.html
免费设计第24期:49VS90 小户型收纳实战
//sheji.pchouse.com.cn/mfsj/1203/189183.html
免费设计23期:多功能收纳 75vs65二居室设计
//sheji.pchouse.com.cn/mfsj/1203/184659.html
免费设计22期:收纳为主 2套80平小户扩容法
//sheji.pchouse.com.cn/mfsj/1201/169544.html
转载申明:PChouse独家专稿,请勿转载!违者本网将保留追究其法律责任的权利!
餐厅:一盏简单的餐厅吊灯是必不可少的,靠墙摆放的餐座椅,侧面白花花的墙壁过于单调,最简单的是可以做几层隔板,有收纳的同时还是兼备展示的功能。
儿童房:由于划出来的儿童房面积比较小,在家具的选择和摆放上,要以小巧为原则,至于软装修饰上,色彩鲜艳的墙纸可以更好的激发孩子的想象力。
小孩的衣柜不用太大,2格的空间足够,做顶的形似更为实用。推拉门比抽拉门更节省空间。
卧室:推荐简欧式的卧室装修风格,深色系的墙纸搭配白色的卧室家具,强烈的视觉对比碰撞出独特的时尚感。
飘窗:凸窗可以铺设一层大理石,然后保留最塬始的设计,搭配窗帘坐垫,会是一个很不错的休憩角落。
卫浴间设计
卫浴间:特别设计一个正方形的淋浴房,干湿分明。
更多免费设计专题回顾:
免费设计25期:78vs76 三居室收纳设计
//sheji.pchouse.com.cn/mfsj/1203/191991.html
免费设计第24期:49VS90 小户型收纳实战
//sheji.pchouse.com.cn/mfsj/1203/189183.html
免费设计23期:多功能收纳 75vs65二居室设计
//sheji.pchouse.com.cn/mfsj/1203/184659.html
免费设计22期:收纳为主 2套80平小户扩容法
//sheji.pchouse.com.cn/mfsj/1201/169544.html
转载申明:PChouse独家专稿,请勿转载!违者本网将保留追究其法律责任的权利!


佚名
2012-4-17 15:33:15













