酒店外观设计
酒店外观设计
酒店外观设计
该区域以阿尔卑斯山建筑为特色,因而该工程在当地经典农舍基础上增加了现代风格。这栋建筑包括三大部分和一个室内花园,自然光得到最大限度的利用,客人可以轻易看到Köroğlu山的风景。每套房都有独特的设计,往外看,美丽的远景令人印象深刻。
编辑推荐
同居一屋 世纪名媛别墅揭秘篇
酒店客厅设计
酒店家具设计
酒店客厅设计
在设计上,除了33平米的标准套房,酒店还包括40平米的阁楼式双层套房,空间显得很宽敞,适合家庭入住。此外,还有70平米的双层阁楼,附带私人按摩浴缸。顾客可以一边沐浴,一边欣赏外景。
编辑推荐
同居一屋 世纪名媛别墅揭秘篇
酒店楼梯设计
酒店楼梯设计
酒店楼梯设计
酒店壁炉设计
酒店吧台设计
室内和户外的不同角度转换,造成有趣的外观视觉效果。通过将外景和不同的窗户形状联系起来,游客每次入住都觉得仿佛住在不同的房间里。公共空间之间的转换和视觉设计具有连续性,设计师还避免了走廊的形态。
编辑推荐
同居一屋 世纪名媛别墅揭秘篇
酒店餐厅设计
工程资料:
设计团队:LEA Invent(Emir Drahsan, Alexandre Schrepfer, Lorenzo Sangiorgi architects, Margherita Frezza, Ugur Can Erol, Burcak Pekin collaborators)
编辑推荐
同居一屋 世纪名媛别墅揭秘篇
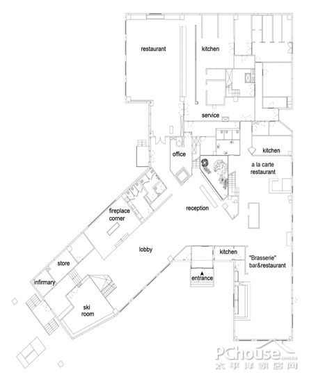
酒店平面图
酒店平面图
地点:土耳其博卢Kartalkaya
客户:Goldenkey Otelcilik
建筑商:Uyar grup, Odak ince yapi sis, Proterm muhendislik
机械:Proterm muhendislik
电气:STM muhendislik
摄影: LEA Invent
编辑推荐
同居一屋 世纪名媛别墅揭秘篇
转载申明:此文系“太平洋家居网”专稿,如需转载,请注明出处“太平洋家居网”及作者并添加原文链接地址,违者本网将追究法律责任!


佚名
2011-1-26 15:43:43

















