【太平洋家居网 设计频道】该公寓极富魅力,不仅有春意盎然的阳台装饰、清新雅致的客厅布局、互动性极强的餐厅设计,还有消化旮旯处的转角书柜、零死角书桌、内凹式天花板设计,魅力时尚一一体现,给你视觉上的享受。
进入具体空间分析:
设计重点:玻璃门设计
编辑点评:玻璃门代替厚重的墙体,妙处多多!增加空间采光率,视野开阔,通风性强。白色窗帘与居室主打色相融相谐,此外,还能削弱阳光直射的热度,保护居室隐私。
客厅设计
设计重点:清新自然
编辑点评:蓝白二色作为居室的主打颜色,清新自然又不高调抢眼,加上鲜花、绿色植被的点缀,整体营造悠闲自在的舒适感,充满春天的味道。
客厅设计
设计重点:收纳展示设计
编辑点评:在客厅旮旯处放置收纳柜,美观又不占位,多个抽屉设计,便于分类收纳,凸显强大的收纳功能,加上玻璃门设计,巧供居室展示平台。
餐厅设计
设计重点:开放式设计
编辑点评:过渡门、双开门取代传统的墙体设计,在保持空间完整性的基础上,又开阔视野、享有一览无余的宽敞感,空间互动性极强!
设计重点:橱柜设计
编辑点评:上下一体的橱柜设计,收纳功能极强。而延长墙体,安置吧台,巧添居室收纳展示功能外,还有巧分空间,隔断的好处。
休闲区设计
设计重点:墙壁设计
编辑点评:盆栽错落有序地挂放于墙壁,美化墙体,巧添参差层次美。木质元素的大量运用,搭配盆栽,营造春意盎然的活力舒适感。
设计重点:书柜设计
编辑点评:书柜为适应墙体,进行转角设计,消化空间旮旯处,居室的收纳展示面积也为此急速增大,实用性极强!
卧室设计
设计重点:明亮舒适
编辑点评:大面积玻璃窗采光高,躺椅放置其旁,可尽情沐浴阳光,而趴着栏杆上,赏窗外美景,更别是一番风味。
卧室设计
设计重点:墙壁设计
编辑点评:黑白相间的条纹墙纸色彩对比强烈,拥有鲜明的色彩跳跃感,动感美十足,避免居室的单调沉闷。
卧室设计
设计重点:零死角设计
编辑点评:书桌书柜合二为一,与墙体完美融合,打造零死角的操作平台,凸显居室强大的收纳展示功能,实属妙招!
卧室设计
设计重点:天花板设计
编辑点评:时下流行的内凹式天花板上配上半球体吊灯,提亮空间,凸显空间品味格调,营造萦绕回旋的浪漫氛围。
设计重点:镜子设计
编辑点评:过渡门、玻璃门将卫浴空间分隔成洗漱间、厕所、浴室三块,功能性明显。小小洗漱间则通过椭圆镜片反光,扩充空间的视觉效果,此外还柔化空间。
卫浴设计
设计重点:布帘隔断
编辑点评:设计师运用碎花布帘进行干湿分区,拉展自如,经济实用。双台盆设计还适合小两口居住使用。
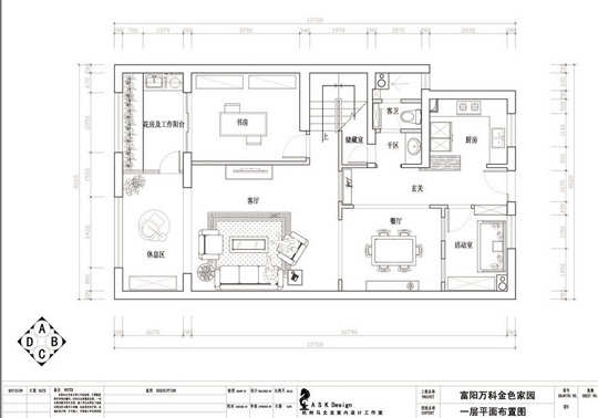
一楼平面布局图
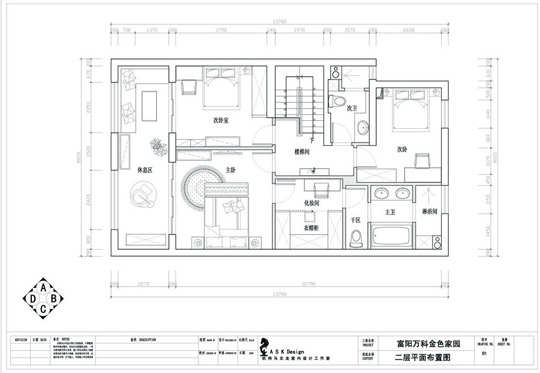
二楼平面布局图
案例提供:杭州马文龙室内设计工作室
设计师:马文龙
地址:杭州拱墅区七古登建华文化创意园区4号楼209-211
电话:13857131130


小凡
2014-2-19 00:15:17

















